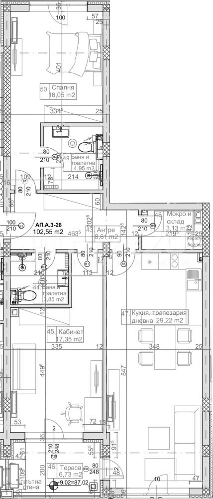
Home2U представя на Вашето внимание един много добър избор за нов дом или инвестиция в нов проект на доказана строителна компания. Това тристайно жилище се състои от дневна с площ 29 кв.м., две спални по 16 и 17 кв.м. една от които със собствено санитарно помещение, още едно санитарно помещение баня с тоалет, перално помещение, както и просторно антре. Дневната и едната спалня са с излаз към обща тераса с югоизточно изложение. Към имота има прилежащо избено помещение. Апартамента е разположен на трети етаж от общо седем с сградата.
В този проект са налични за избор и други 1-стайни, 2-стайни, 3-стайни, 4-стайни апартаменти, както и гаражи и паркоместа.
За повече информация и организиране на презентация се обадете СЕГА и цитирайте Имот 121231
Виж всички обяви в home2uvarna.bazar.bg или тук
        
       
         
         
         
             
             
            






