ERA Парадайс Ви предлага за продажба 2-стайни и 3-стайни апартаменти с морска панорама в жилищен комплекс, разположен близо до един от най-добрите плажове на Варна Кабакум , в к.к. 'Чайка'.
Комплексът се състои от две 6-етажни жилищни сгради, включващи 8 студия и 36 апартамента с една и две спални, свързани от двор с обмислено озеленяване, детска площадка и места за сядане на открито. Към всеки апартамент имате възможност да закупите и паркомясто на открития или в подземния паркинг.
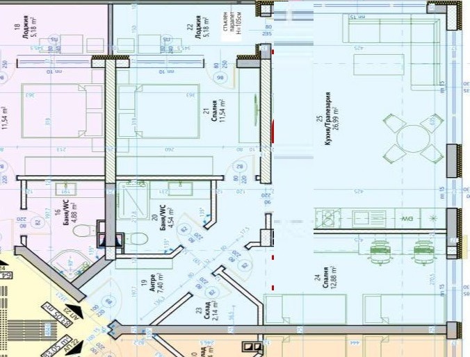
Апартаментът, който Ви представяме в настоящата обява, е тристаен, с обща площ от 96.65 кв. м (ЗП 83.05 кв. м). Състои се от антре (7.40 кв. м), дневна с кухненска част и трапезария (27 кв. м), две самостоятелни спални (съответно с площ от 11.54 кв. м и 12.88 кв. м), лоджия (5.18 кв.м) с излаз от дневната и едната спалня, баня с тоалетна (4.54 кв. м). Разпределението е изключително функционалнално, с комфортни обеми на всички помещения. Френските прозорци и югоизточното изложение гарантират осветеност на помещенията през целия ден и прекрасна гледка към морето!
Жилищната сграда, в която е разположен апартаментът, е част от комплекс с ограничен достъп. Строителството е луксозно, висококачествено и от утвърден строител. Заложените материали са с високо качество, използвани при висок клас строителство. Фасадата ще бъде завършена с минерална мазилка и елементи от естествен камък. Дограмата ще бъде Rehau ( 5-камерна, 3-ен стъклопакет). Асансьорът е предвиден да бъде Kone, а общите части на сградата ще бъдат луксозно завършени, с положени настилки от гранит.
К.к. Чайка се формира като нова жилищна зона на град Варна, привличайки не само туристи за сезонно ползване, но и много жители, които ползват имотите си целогодишно. В к.к. Чайка има много ресторанти, барове и места за социални контакти. В близост (на разстояние около 500 м) е плаж 'Кабакум', а Варненският свободен университет е на 300 м.
К.к. 'Чайка' граничи на север с плажната ивица на в.к. 'Ривиера , а в посока град Варна с плаж 'Кабакум', в района на 'Журналист'. Предпочитано място e за туристи, избрали спокойна, усамотена почивка, далеч от суетата и шума на големите комплекси, идващи да се насладят на слънцето, морския бриз и солената вода, както и за целогодишно ползване. Има достатъчно удобен градски транспорт, който свързва района с центъра на града - автобусни линии 9 и 409 до спирките 'Журналист' и 'Република', а с автомобил до центъра на града се стига за не повече от 15 мин.
Оферта 7100145.
Виж всички обяви в paradise_ltd.bazar.bg или тук
        
       
         
         
         
         
         
         
             
             
             
             
             
            






