Компания `ЕКС` представя на Вашето внимание тристаен апартамент в ж.к. Манастирски ливади.
МЕСТОПОЛОЖЕНИЕ: В близост до спирки на градски транспорт, магазини от всякакъв тип и всичко най-необходимо.
СТРОИТЕЛСТВО: Апартаментът е ситуиран на 2-ри етаж в сграда ново строителство с очакван акт 16 през пролетта на 2026г.
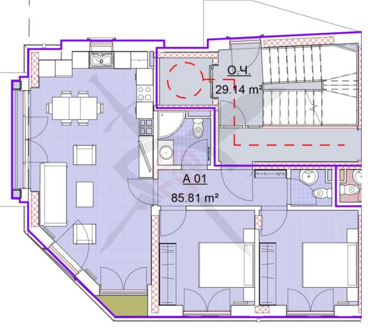
РАЗПРЕДЕЛЕНИЕ: Жилището разполага с площ от 109 кв.м., разпределена във входно антре, дневна с трапезария и кухненска част, две спални помещения, баня с тоалетна, самостоятелна тоалетна и тераса.
ОСОБЕНОСТИ: Към апартамента може да бъде закупен гараж.
Заповядайте, да Ви го покажем. Използвайки нашите услуги, Вие ще превърнете закупуването на новия си дом в едно приятно изживяване, ще получите персонален консултант, съдействие при кандидатстване за кредит от всички банки в България, интериорни дизайнери и екип, който да се погрижи за нужните документи по Вашата сделка. На Ваше разположение сме всеки ден, от понеделник до неделя от 09:00 до 20:00ч. Възползвайте се от безплатна консултация в наш офис, където ще Ви спестим време и ще Ви запознаем с всички актуални имоти в България, отговарящи на Вашето търсене. Свържете се с нас на 0887 77 99 90 или на 0886 12 12 57 и цитирайте кода към имота: 1012-29498.







