АКЦИЯ за кратко време!
Директни продажби от Инвеститор!
Строителна фирма Ей.Джи.Ейч ЕООД започва строеж на нова жилищна сграда в гр.Созопол, м.Мисаря!
Бързоразвиващ се район, в близост до плаж Хармани, на 5мин пешеходно разстояние.
Жилищата ще се издават на степен до ключ, готови настилки + санитария в баня, заредени контакти и осветителни тела! Сградата ще бъде с асаньор и луксозни общи части!
Различни схеми на разплащане.
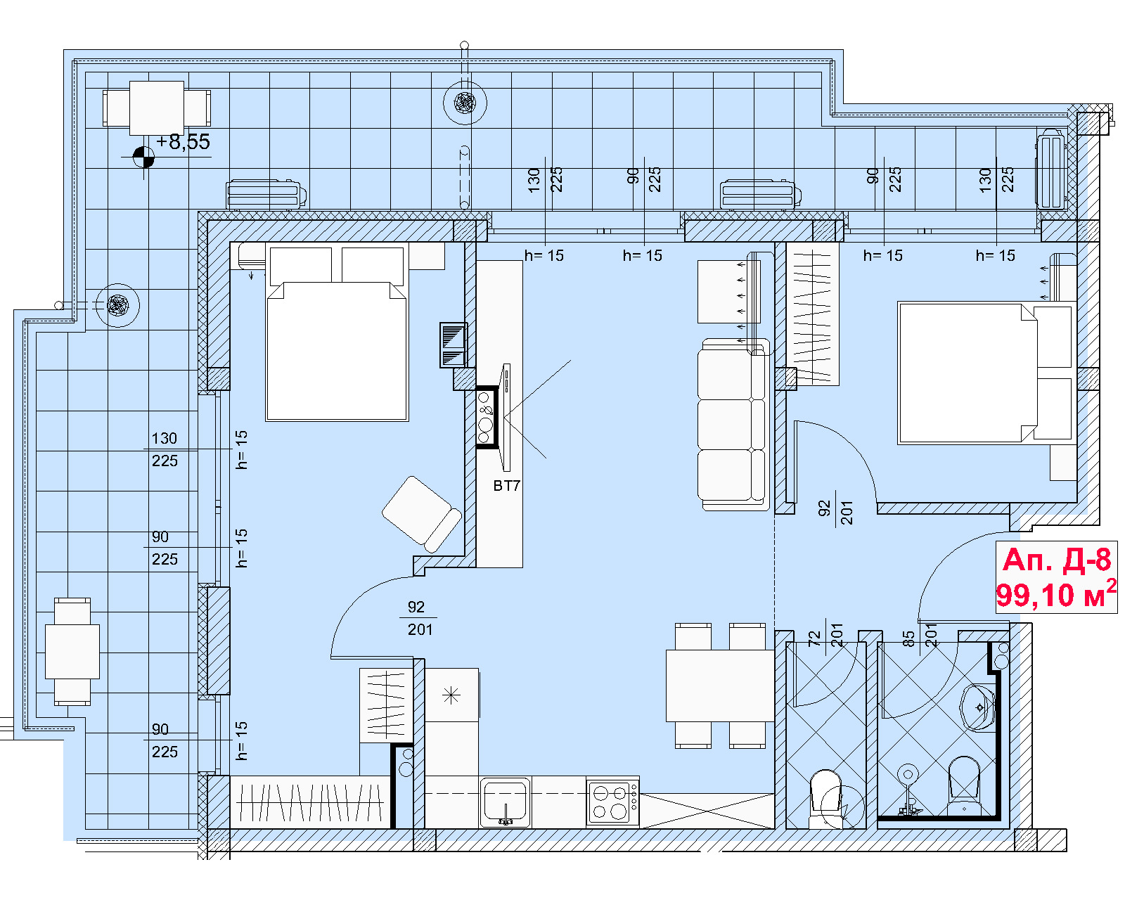
Предлагаме на Вашето внимание просторен апартамент с две спални, с югозападно изожение. Имотът е с квадратура 128,71м2 и се състои от дневна с кухненски бокс, спалня1 и спалня2 с гардеробно, баня с wc, самостоятелно WC, преддверие и голяма тераса с излаз от всички стаи. Към апартамента има допълнително самостоятелно помещение изба/килер на приземен етаж.
Разположен е на четвърти жилищен етаж.
В сградата се предлагат за покупка и самостоятелни гаражи на подземно ниво и на ниво партер.







