Местоположението на сградата е изключително комуникативно и удобно - в подножието на Витоша, в района на Бизнес парк и едноименната метростанция. Достъпът до центъра и кварталите е бърз - по бул. Александър Малинов и по ул. Околовръстен път.
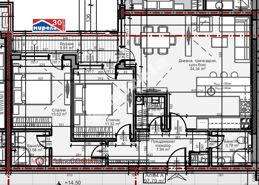
С тази оферта презентирам функционален тристаен апартамент, който се намира на етаж 6 от 10 и е със следното разпределения: антре, дневна с кухненски бокс, две спални, две бани и лоджия.
Строително-инвестиционната компания е с дългогодишен професионален опит. Висококвалифицирани специалисти следят за правилното проектиране и безопасно изпълнение на всички строителни дейности. Строежът се изпълнява в указаните срокове според всички европейски изисквания.
Green Park Avenue се състои от три входа (А, Б и В) и е развита на партерно ниво с ателиета и гаражи и девет изцяло жилищни етажа. Отличава се с модерна и представителна фасада с високоефективна топлоизолация. Общите части са луксозно изпълнени. Озеленяването около сградата ще е изпълнено по проект. В сградата има двустайни, тристайни и четиристайни апартаменти, като паркирането е решено на ниво терен и на ниво -1 с паркоместа и гаражи.
За повече информация, среща с инвеститора и оглед на място, не се колебайте да се свържете с водещия консултант - продажби.
Има 1 балкон/тераса; Непреходен; ВИД СТРОИТЕЛСТВО: тухла; ЗАСТРОЕНА ПЛОЩ 97.79 кв.м; ИЗЛОЖЕНИЕ: север; СПАЛНИ: 2; БАНИ: 2; ДОГРАМА: PVC
_________________________________________________________________________________________________
Към потенциалните продавачи!
Ако продавате подобен имот или обмисляте дали да го направите в близко бъдеще, моля свържете се с мен. Имам клиенти, които търсят в района. Мога да дам ориентировъчна цена по телефон или имейл и по-точна цена при оглед на място.
ОГЛЕДЪТ И КОНСУЛТАЦИЯТА СА БЕЗПЛАТНИ.
МОЖЕТЕ СЪЩО ТАКА, ДА ПОДАДЕТЕ И БЕЗПЛАТНА ЧАСТНА ОБЯВА ЗА ПРОДАЖБА НА ВАШИЯ ИМОТ В MIRELA.BG, БЕЗ БРОКЕР И КОМИСИОНА.
Виж всички обяви в mirela.bazar.bg или тук
        
       
         
         
         
         
         
         
         
         
         
         
         
             
             
             
             
             
             
             
             
             
             
            






