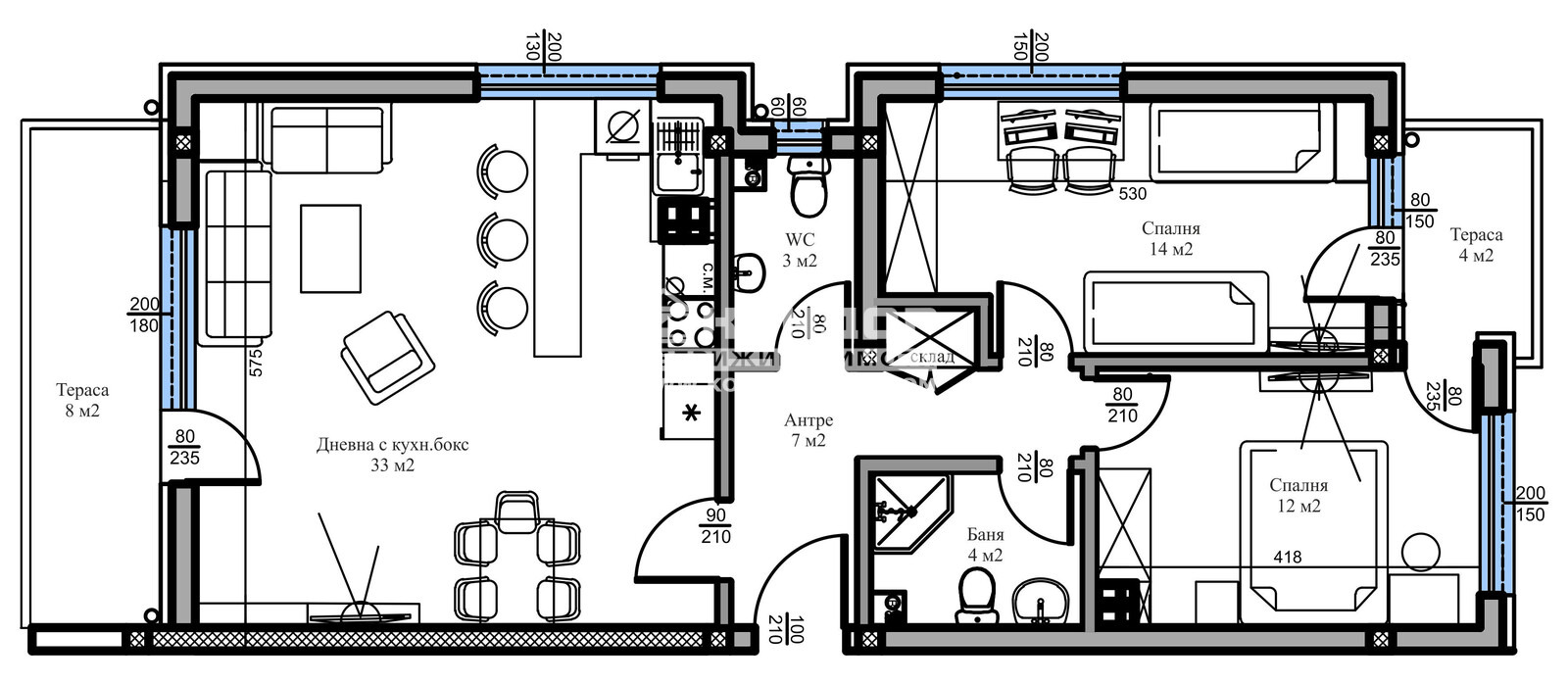
Оферта 66206: Представяме Ви новоизградена малка и луксозна сграда, проектирана така, че да създаде максимален комфорт и уют в един от най- бързо развиващите се райони с лесен и удобен достъп и транспорт към центъра на Града. Сградата се намира на тихо и спокойно място в близост до всички необходими комуникации. Жилището се състои от просторна югозападна дневна 33кв.м. с трапезария и кухненски бокс с излаз на тераса, две самостоятелни спални с излаз на обща тераса: детска 12кв.м. и родителска 14кв.м., баня с тоалетна, втора тоалетна, килер и входно антре. Обектът е построен от фирма с доказан опит, като разполагаме с готови сгради и можем да Ви покажем качеството на изпълнение, което се осъществява с висококачествени материали и съвременни технологии, по европейски стандарт, петкамерна PVC дограма, червена Австрийска Тухла, масивна Блиндирана входна врата с 4-странно заключване, сензорно осветление, хидравлични асансьори с огледална кабина. Свободни паркоместа в двора на цени от 13000 евро !!! Възможност за Закупуване чрез Банков Кредит или разсрочено изплащане по време на строителството !!! Възползвайте се от възможността да живеете в малка сграда на спокойно място !!!
ВИЖТЕ ОЩЕ ИЗГОДНИ ОФЕРТИ НА https://www.kondorimoti.com/ С ЕЖЕДНЕВНА АКТУАЛИЗАЦИЯ!







