ГЪВКАВА СХЕМА НА ПЛАЩАНЕ, С МИНИМАЛЕН ПРОЦЕНТ ПРИ ПОДПИСВАНЕ НА ПРЕДВАРИТЕЛЕН ДОГОВОР!!!
'Джи Ем Консулт' предлага за продажба 2-стайни, 3-стайни и два 4-стайни апартамента в новострояща се жилищна сграда на тиха улица с прекрасна гледка към града в 9-ти квартал на гр.Плевен. Имотът е проектиран в модерен стил, отговарящ на всички изисквания за удобство и комфорт на съвременно жилище, функционални разпределения. Сградата е изградена съгласно всички нови стандарти и материали от най-висок клас, ПВЦ дограма с троен стъклопакет, 12 см. топлоизолационен слой, луксозни общи части! Жилищата се издават на шпакловка и замазка!
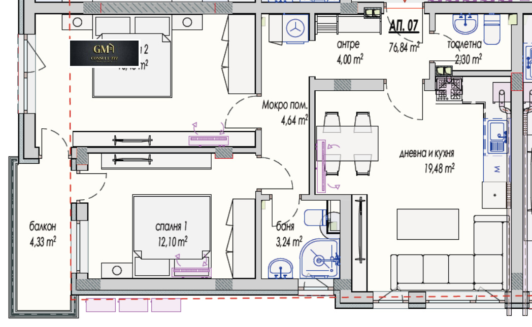
Посоченият 3-стаен апартамент 7 е с площ 87,94 кв.м. общи части и 76,84 кв.м. чиста площ от които всекидневна с кухненски бокс 19,48 кв.м. с източно изложение, две спални с площ от 12 кв.м. и 15 кв.м. с южно изложение, антре, баня с тоалетна, отделно тоалетна, мокро помещение и балкон!
Към големите апартаменти има свободни гаражи!
Отопление: ток и инсталация за газ!
Прилежащи мази към всяко жилище!
Очакван срок на завършване - края на 2025 година!
На разположение за вашите въпроси и насрочване на огледи - Гергана Митова 0883737344
Виж всички обяви в gm-consult.bazar.bg или тук
        
       
         
         
         
         
         
         
         
             
             
             
             
             
             
            






