✔ кв. Ов. Купел 1 ул. Босилек
✔ на 500 м от Метростанция 'Овча Купел'
✔ 134 м2
✔ ВЪЗМОЖНОСТ ЗА ЗАКУПУВАНЕ НА ПАРКОМЯСТО
✅ Локация:
Тристаен апартамент с прекрасна локация, намиращ се в един от най-предпочитаните квартали в гр. София - ж.к. 'Овча Купел 1'.
В непосредствена близост до Метростанция 'Овча Купел', магазин 'Кауфланд', '88 средно училище 'Димитър Попниколов' и множество малки магазини. Леснодостъпно местоположение и възможност за бързо достигане до всички централни места, посредством булевард 'Президент Линкълн' и булевард 'Овча Купел'
✅ За сградата:
Малка тухлена сграда на доказан строител, с 14 апартамента пред АКТ 15. Очаква се АКТ 16 средата на годината.
✅ За имота:
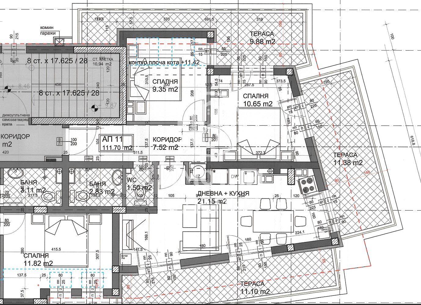
Жилището се намира на трети жилищен етаж и е с площ от 134 кв.м. - 112 кв.м. чиста застроена площ. Функционален, светъл, топъл и тих.
✅ Функционално разпределение: входно антре, баня с тоалет, тоалетна, хол с кухненски бокс и излаз на тераса, спалня с излаз на тераса и втора спалня с излаз на тераса.
✅ Паркиране:
Допълнително може да се закупи паркомясто.
✅ Отопление на ток
✔ За Ваше улеснение прилагаме схема с разпределение на имота. За допълнителна информация и за да запишете час за оглед, в удобно за Вас време, се обадете на следния телефон: 0876229989 и цитирайте референтен номер: 1618.
Виж всички обяви в imotnisdelki.bazar.bg или тук







