Референтен номер: 31713
Консултант Недвижими Имоти : Боряна Борисова - 0894 458 444
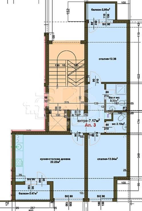
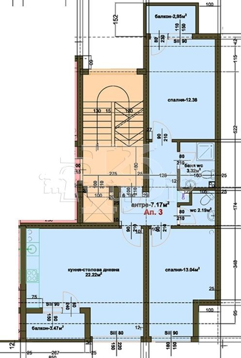
Предлагаме тристаен апартамент с обща площ от 102кв.м, находящ се в кв. Христо Ботев в жилищна сграда на ниво АКТ 14. Имотът се състои от входно антре, дневен тракт с площ от 24кв.м с излаз на тераса, спалня с площ от 12кв.м с излаз на тераса, втора спалня с площ от 13кв.м, баня с тоалетна, втора тоелтна, изба. Жилището се намира на етаж трети и е с изложение изток - запад. Предвижданото финализиране на сградата е 2026-та година. Плащането е разсрочено до завършване на сградата и въвеждането ѝ в експлоатация.
РУДИ КЕЙ предлага извършване на всички необходими, юридически и технически проверки на имот, проучване на възможностите за оптималната реализация, организация на всички етапи от сделка за покупко-продажба, включително финализиране с нотариално прехвърляне на имота, наемни отношения; съдейства за отпускане на банкови кредити при възможно най-добри условия за клиента. Компанията е регистрирана по ЗЗЛД като администратор на лични данни, което гарантира сигурността на клиентите.
Консултант Недвижими Имоти : Боряна Борисова - 0894 458 444
Виж всички обяви в rudikdobrich.bazar.bg или тук
        
       
         
         
         
         
         
         
         
         
             
             
             
             
             
             
             
            






