РАЛИЦА ВЕЛИКОВА - 0877 300 367
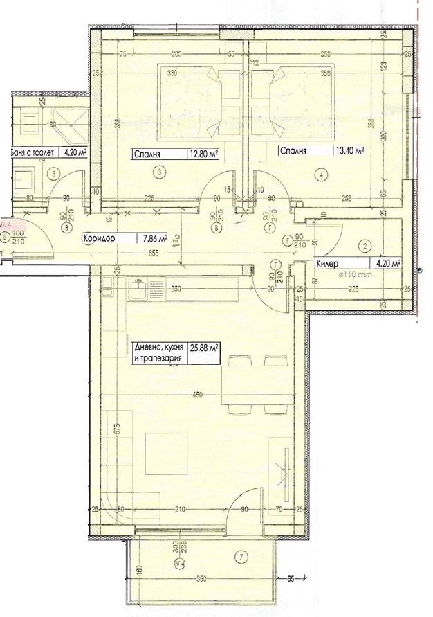
Имотът представлява : Входно антре, слънчева всекидневна с обособена кухненска част; две големи спални , баня с тоалет и прекрасен прилежащ двор. Жилището е с правилни форми на стаите, изложение ЮГ.
Състояние : Жилището ще бъде завършено по 'БДС' с опция за завършване 'До ключ'
Отлична Локация : Имота се намира в един от най-предпочитаните за живеене и инвестиция райони на град Варна м-ст Траката. Лесен и бърз достъп до главни пътни артерии, административни учреждения, банки, училища, детски градини, автобусни спирки, детски площадки, аптеки, търговски центрове, супермаркети, козметични студия, заведения и туристически атракции.
Строителство: Фасадата е проектирана с 10 см каменна вата и ще завършена с естествен камък травертин , което гарантира както естетика, така и отлични термоизолационни свойства. Предвидена е висок клас дограма, която ще допълни високия стандарт на строителството.
Паркирането е решено в рамките на имота, като откритите паркоместа са разположени в красиво озеленено и затревено дворно пространство.
От кота нула се открива прекрасна гледка към морето.
Забележка: Приложените по-горе описания и визуализации са илюстративни и имат за цел да Ви дадат максимално добра и идейна представа за общия вид и разпределението на имота! Горепосочените са одобрени от собственика и публикувани с неговото съгласие!
* Като клиенти на Бравис Брокърс получавате най-добрите условия при нужда от ипотечен кредит.
* Завършване До ключ на преференциални цени!
Виж всички обяви в bravisbrokers.bazar.bg или тук







