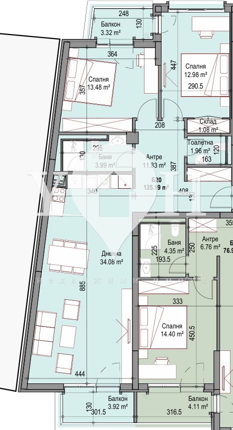
Имотът е ситуиран на 5-ти от 9 етажа и е със следното функционално разпределение: антре, просторен хол с кухненски бокс с излаз на балкон, две спални отново с излаз на балкон и два санитарни възела. Изкарани изводи на климатици и ТЕЦ. Подово отопление в баните.
Сградата се намира в едно от най - комуникативните места в София, между две метростанции, Театрална и метростанция Хаджи Димитър. Общите части на сградата ще бъдат луксозно изпълнени и оборудвани с гранит,дървена ламперия и луксозен хидравличен асансьор. Предвидена е шумоизолация. Прозорците ще бъдат оборудвани с шесткамерна дограма с трислоен стъклопакет. В сградата се предлагат свободни паркоместа и подземни гаражи.
За повече информация и огледи се свържете с нас и цитирайте кода на обявата: 14122
Разгледайте и други предложения на страницата ни: www.yohome.bg
Виж всички обяви в yohome.bazar.bg или тук







