ЧИСТО НОВ И НАПЪЛНО ОБЗАВЕДЕН АПАРТМЕНТ СЛЕД ТОТАЛЕН РЕМОНТ В МНОГО КОМУНИКАТИВЕН РАЙОН!
JJcorporation предлага на Вашето внимание великолепен тристаен апартамент, находящ се на бул. Мадрид, в близост до ул. Мърфи в кв. Оборище. Изключително комуникативен и хубав район - в непосредствена близост до главни булеварди, Малък градски театър зад канала, магазини, училище, на 3-ри минути от метростанция Театрална.
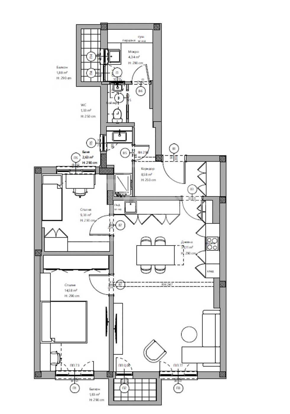
Апартаментът, който Ви предлагаме е разположен в малка тухлена кооперация от 1934г., с общо четири апартамента (по един на етаж), на етаж 4-ти над партер, а над него има обитаеми тавани. Имотът е с площ от 106 кв.м, след тотален ремонт със сменени ВиК и ел. инсталации. Напълно обзаведен с чисто нови мебели, електрически уреди, климатици, осветителни тела и пълен декор.
Разпределението е
- входно антре с вграден гардероб
- великолепна просторна дневна обособена на зони
- модерна вградена кухня с висок клас електрически уреди - AEG и ELECTROLUX
- трапезария
- слънчев хол
- голяма родителска спалня с вградени гардероби по поръчка
- втора спалня, подходяща за кабинет или детска стая
- допълнителна стая (подходяща за кабинет)
- баня с душ кабина
- отделна тоалетна
- две тераси, като едната е усвоена към мокрото помещение, а другата към дневната с прекрасна южна гледка към града и Витоша планина. Към апартамента има таван и голямо мазе.
Работим с колеги по всички наши оферти! Агенцията ни предлага преференциални условия за отпускане на ипотечен кредит и пълно юридическо съдействие. Удобно е да се обаждате по всяко време!
Водещ брокер:
Ирина Джанева - 0887 219 224.
Оферта номер:312.
BRAND NEW & FULLY FURNISHED APARTMENT FOLLOWING A FINISHED & TOTAL RENOVATION IN A VERY CONVENIENT LOCATION !
JJcorporation offers to your attention a magnificent three-bedroom apartment, located on Madrid Blvd., near Murphy St. in Oborishte district. Extremely easy to commute and lovely area - in close proximity to main boulevards, Small City Theater behind the canal, shops, school, parks and just 3 minutes by walk from Teatralna metro station.
The apartment we offer you is located in a small brick building from 1934, with a total of four apartments (one per floor), on the 4th floor above the ground floor, and above it there are habitable attics. The property has an area of 106 sq m, after a total renovation with replaced plumbing and electrical installations. Fully furnished with brand new furniture, electrical appliances, AC, lighting fixtures and complete decor.
The layout is as follows:
- entrance hall with built-in wardrobe
- magnificent spacious living room separated into zones
- modern built-in kitchen with high-end electrical appliances - AEG and ELECTROLUX
- dining room
- sunny living room
- large master bedroom with custom-made built-in wardrobes
- second bedroom, suitable for an office or children's room with custom made built in wardrobes
- bathroom with shower
- additional room (suitable for office)
- separate toilet
- two terraces, one of which is an extension to the laundry room , and the other for the living room with a wonderful southern view of the city and Vitosha Mountain - the apartment has an attic and a large basement.
We work with colleagues on all our offers! Our agency offers preferential conditions for granting a mortgage loan and full legal assistance. It is convenient to call at any time!
Leading broker:
Irina Janeva - 0887 219 224.
Offer number: 312.







