Тристаен апартамент.
Нова, модерна сграда с уникална локация
Панорамна гледка към морето
Доказан строител
Предлагаме ви тристаен апартамент за продажба в м-т Кабакум, гр. Варна.
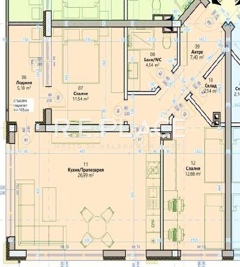
Апартаментът е с площ от 96.65 м2., на пети жилищен етаж, в новострояща се тухлена сграда.
Състои се от дневен тракт с кухня, две спални, тераса, санитарно помещение, килер и входно антре.
Имотът се продава завършен по БДС.
Входът е с контрол на достъпа и асансьор.
Свободни за продажба са двустайни и тристайни апартаменти, с възможност за избор по вид и етаж, които също ще бъдат завършени по БДС.
Общите части на сградата ще бъдат луксозно изпълнени, с качествени материали.
Посочената цена е при схема на плащане 30/70. При желание има възможност да се договорят други схеми на плащане.
Районът е предпочитан за живеене. В близост има магазини, заведения, прекрасен плаж, удобен обществен транспорт и др.
За повече информация, моля свържете се с нас на посоченият телефон!
Виж всички обяви в replace.bazar.bg или тук







