Translations in other languages:
All real estate ads published on imot.bg have been translated into English and published on the partner site
Получихте нова обява по филтър





Промяна на цена на наблюдавана обява


стара цена
нова цена
imot.bg – обяви за продажби и наеми на имоти
Сайт за имоти №1
Translations in other languages:
All real estate ads published on imot.bg have been translated into English and published on the partner site
ДОБАВИ ОБЯВА Редакция на обява
Начало Публикуване Търсене Нови сгради Агенции Новини Кредити + Още... Моят имот
Продава 3-СТАЕН
град Варна, Левски 1
198 665 €
388 554.97 лв.

(1 839 €, 3 596.77 лв./m2)
Цената е с включено ДДС
История на цената
Коригирана в 11:24 на 21 август, 2025 год.
Обявата е посетена 1471 пъти.
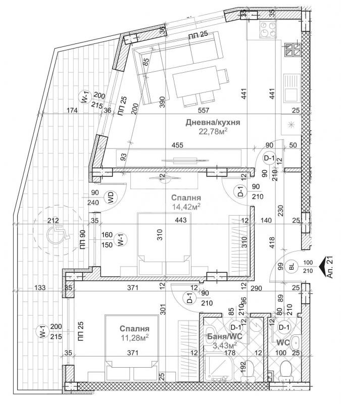
Площ:
108 m2
Етаж:
5-ти от 7
Строителство:
Тухла,

Описание на имота:


Компания за недвижими имоти "Купи в България" предлага за продажба на своите клиенти атрактивни и функционални апартаменти в новострояща се сграда в района на кв. Левски, гр. Варна.Съчетавайки иновации, функционалност и елегантен дизайн, сградата разполага със 7 надземни етажа и едно подземно ниво с 26 паркоместа. Общият капацитет от 33 апартамента и 33  паркоместа е разумно разпределен, като е даден приоритет и на лесния достъп. За любителите на активния начин на живот са предвидени места за велосипеди, а противопожарната сигурност е гарантирана чрез специално евакуационно стълбище.На първи етаж живущите ще могат да избират между двустаен и тристаен апартамент, като последният ще отговаря на най-високите стандарти за достъпност. Допълнителните удобства, като лични мази и складови помещения в самите апартаменти, са предвидени с мисъл за комфорта на жителите.Архитектурният облик на сградата ще комбинира модерни тенденции с класически елементи. Ще се използва стоманобетонова, гредова конструкция, укрепена с носещи колони, греди, шайби и здрави стоманобетонови плочи. С тази конструктивна основа, жилищните етажи ще се отличават с височина от 285 см. и 290 см., гарантирайки, че светлата височина във всяко жилище няма да бъде по-малка от 260 см. Така всяка стая ще се чувства просторна и светла.Балконските парапети, с планирана височина от 1,05 м. от настилката, ще предоставят защита и комфорт, като същевременно позволяват на жителите да се наслаждават на изгледа. Прозрачните стъклени парапети ще предлагат невероятни гледки, докато вниманието към детайлите, като каменните облицовки и висококачествената мазилка, ще добавят допълнителна стилова насока.Енергийната ефективност е ключов приоритет при изграждането на сградата. Външните ограждащи стени, с дебелина от 25 см., ще се подсилват с допълнителна топлоизолация, чиято дебелина ще бъде определена по специалния проект за енергийна ефективност. Визуалният аспект на сградата ще бъде подчертан с външна мазилка тип “Баумит” и с тилна каменна облицовка. Допълнителен акцент върху елегантността на конструкцията ще сложат корнизите, изработени от камък, които ще придават завършен и изтънчен вид на сградата.Всеки елемент от проекта е избран с грижа за устойчивостта и дълготрайността на сградата, следвайки строгите национални стандарти. Така тази сграда ще предложи не само комфорт, но и надеждност на своите жители.За повече информация и огледи, моля свържете се с нас на посочените телефони !С удоволствие Ви информираме, че в случай, че разглеждате възможността за банков кредит, ние разполагаме с екип от лицензирани кредитни консултанти, които са готови да Ви предоставят безплатна консултация. Те ще Ви помогнат да разберете Вашите опции за финансиране и да изберете най-подходящото решение според Вашите нужди и възможности!
Виж всички обяви в kupivbg.bazar.bg или тук
Особености
Тухла
Асансьор
С паркинг
За контакт:
0897 630 830

Този имот се предлага само на частни лица
Брокер:
Надежда Баева
0897 630 830
Офис: ул. 'Акад. Андрей Сахаров' 19, вх. 1 партер
Още оферти от брокера: Продава | Дава под наем | Купува | Наема
Агенция:
КУПИ В БЪЛГАРИЯ
052 630 830
КУПИ В БЪЛГАРИЯ logo
Медал за прослужено време
В imot.bg от 2013 г.
kupivbg.imot.bg
Адрес:
област Варна, гр. Варна, ул. Акад. Андрей Сахаров 19
http://www.kupiv.bg
ИЗПРАТИ ЗАПИТВАНЕ
ИЗПРАТИ ЗАПИТВАНЕТО

Продава 3-СТАЕН
град Варна, Левски 1
Обява: 1c173275693755035

198 665 €
388 554.97 лв.
История на цената
(1 839 €, 3 596.77 лв./m2)

Цената е с включено ДДС
ЗАПАЗИ ОБЯВАТА

Местоположение: град Варна, Левски 1

Виж още имоти от Варна или още Тристайни Апартаменти във Варна
Допълнителни данни за имотите в района и сравнение с други райони: Търсене в АРХИВ 2013 - 2025 г.











Добави/редактирай
вид имот и район
*Средните цени са определени чрез медиана стойност.
Още обяви в imot.bg
КОНТАКТИ | SMS КОДОВЕ | СТАТИСТИКА | ПОМОЩ | ОБЩИ УСЛОВИЯ | РЕКЛАМА | ТОП ОФЕРТА | Въпроси и предложения към imot.bg
Резон Медия | Имоти | Автомобили | Работа | Новини | Обяви | Преводи и легализация 2002-2025 ® Copyright imot.bg
© imot.bg ползва и препоръчва хостинг услугите на Bulinfo.net
Следвайте ни в: