Етапи на строителство: Сградата е с Акт 14, Акт 15 - октомври 2024 г, Акт 16 - към края на 2024 г.
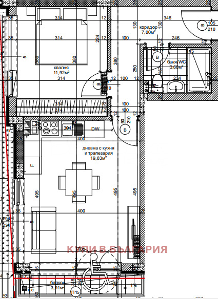
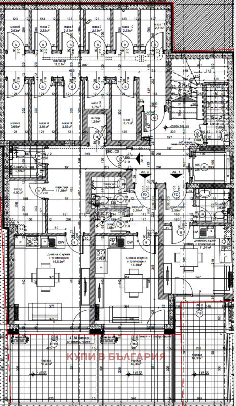
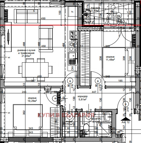
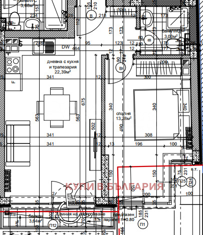
Жилищната сграда е проектирана на 5 етажа с 14 апартамента едностайни, двустайни и тристайни с площ от 46м2 до 87м2 , разположени изцяло на югоизток, юг, югозапад, като на първи полувкопан етаж, всеки апартамент разполага със собствен двор. Разположението на сградата гарантира прекрасна морска панорама на апартаментите от кота 0. Изпълнението на сградата е възложено на доказал се в бранша строител. Сградата ще бъде построена с материали от висок клас, съобразени с последните технологични тенденции. Предвидено е изграждане на барбекю зона и зона за отдих. Също така ще има 2 зарядни станции за електромобили.
Паркиране: Предвидени са 14 броя паркоместа, които можете да закупите на цена от 15 000 до 25 000 EUR/паркомясто, в зависимост от местоположението.
Апартаментите ще се издават по БДС, като всеки клиент има възможност да избере и завършване до ключ на преференциални цени.
Все още можете да станете собственик на жилище в тази висококачествена, модерна сграда, ситуирана в район с отлична инфраструктура и всички необходими комуникации.
Район: Районът е престижен и предпочитан за живеене. Тишина и спокойствие успешно се съчетават с удобни транспортни връзки до плажа и центъра на града. Сградата се намира непосредствено до главен булевард и автобусна спирка.
При необходимост можем да съдействаме за напълно безплатна кредитна консултация, с най-добри условия от всички банки!
Ако проявявате интерес, за повече информация и организиране на оглед звъннете на посочените телефонни номера! 29921
Виж всички обяви в kupivbg.bazar.bg или тук
        
       
         
         
         
         
         
         
         
         
         
         
         
         
         
         
         
         
         
             
             
             
             
             
             
             
             
             
             
             
             
             
             
             
             
            






