ОТЛИЧНА ЛОКАЦИЯ!!! ТРИСТАЕН АПАРТАМЕНТ!!! ЗАВОД ДРУЖБА!!! НОВА СГРАДА!!! УТВЪРДЕН СТРОИТЕЛ!!! БЕЗ ПРЕХОД!!!
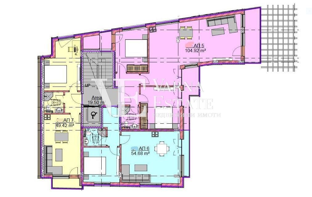
Варна Естейт предлага на Вашето внимание тристаен апартамент в новострояща се тухлена сграда с асансьор в квартал Завод Дружба. Жилището е с обща площ от 116 кв.м., чиста жилищна площ 96кв.м. и е със следното разположение: Дневна с кухненски бокс, 2 спални, баня с тоалетна, коридор, тераса. Изложението на апартамента е изток-северозапад.
С възможност на допълнително закупуване на паркомясто.
Сградата се отличава с модерна и изчистена визия и висококачествени материали, предлагаща сигурност и комфорт. В близост до нея се намират детски градини, училища, стадион, хипермаркети и медицински центрове. Благодарение на изключително комуникативното си местоположение, имате бърз и лесен достъп до всички точки на град Варна, а автобусните спирки и тролейбусните линии са на пешеходно разстояние, предлагайки удобен и екологичен начин за придвижване.
За повече информация и огледи, моля цитирайте код: 9057
Тел. за връзка 0877 240 260







