Компания `Х` представя на Вашето внимание тристаен апартамент в квартал Кючук Париж!
МЕСТОПОЛОЖЕНИЕ: Кючук Париж е един от най-големите и гъсто населени квартали в град Пловдив, разположен в южната част на града. Със своето характерно име, което буквално означава 'Малък Париж', кварталът се отличава с разнообразна култура, удобства и динамичен живот.
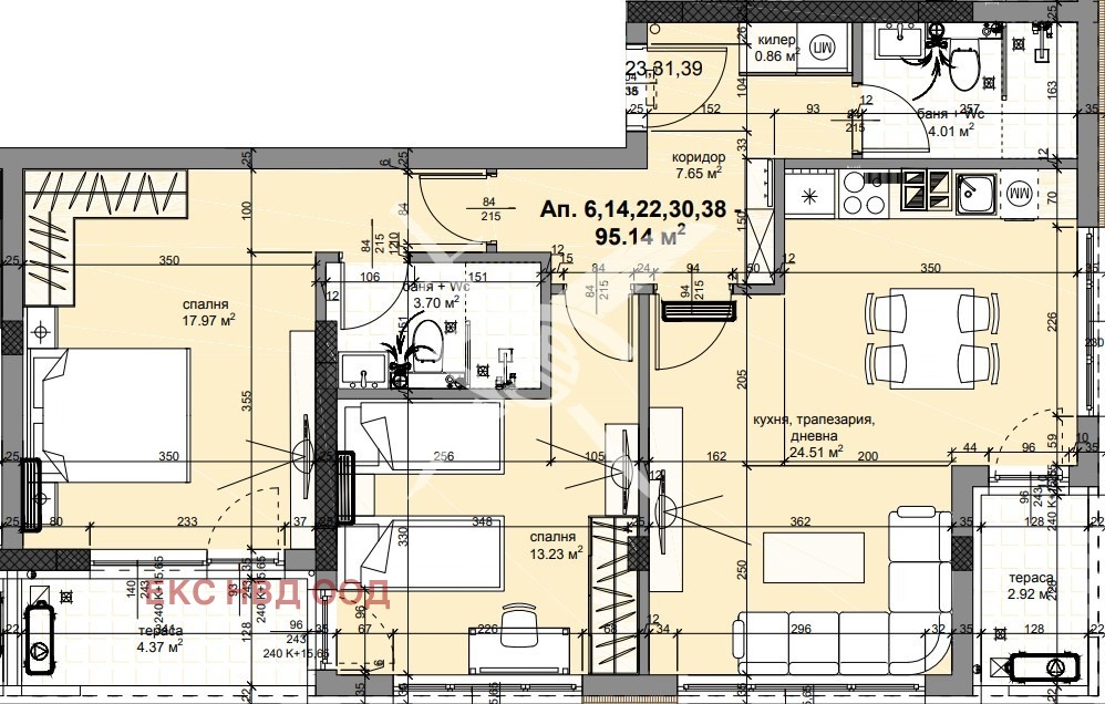
РАЗПРЕДЕЛЕНИЕ: Площ от 112 кв.м, разпределени между голям хол с кухня,две спални,предверие,килер,две бани с тоалтни,две тераси!
СЪСТОЯНИЕ: Жилище от водещ строител с доказано качество на изработка! Цената е с направена отстъпка!
ИЗЛОЖЕНИЕ:юг/изток
Заповядайте да Ви го покажем. Използвайки нашите услуги Вие ще превърнете закупуването на новия си дом в едно приятно изживяване, ще получите персонален консултант, съдействие при кандидатстване за кредит от всички банки в България, интериорни дизайнери и екип, който да се погрижи за нужните документи по Вашата сделка. На Ваше разположение сме всеки ден, от понеделник до неделя от 09:00 до 20:00ч. Възползвайте се от безплатна консултация в наш офис, където ще ви спестим време и ще ви запознаем с всички актуални имоти в България, отговарящи на Вашето търсене. Свържете се с нас на 0887 77 99 90 или на 0884 06 09 90 и цитирайте кода към имота:73016







