Unique Estates предлага тристаен апартамент за продажба в един от най - бързоразвиващите се южни район на София - Малинова долина.
Жилището се намира в забележителен комплекс, вдъхновен от американския стил на жилищно строителство. Проектът включва три нискоетажни сгради, изградени с иновативни енергоспестяващи технологии, както и красив охраняем двор без автомобилен достъп, парк от кленови дървета и панорамни гледки към Витоша.
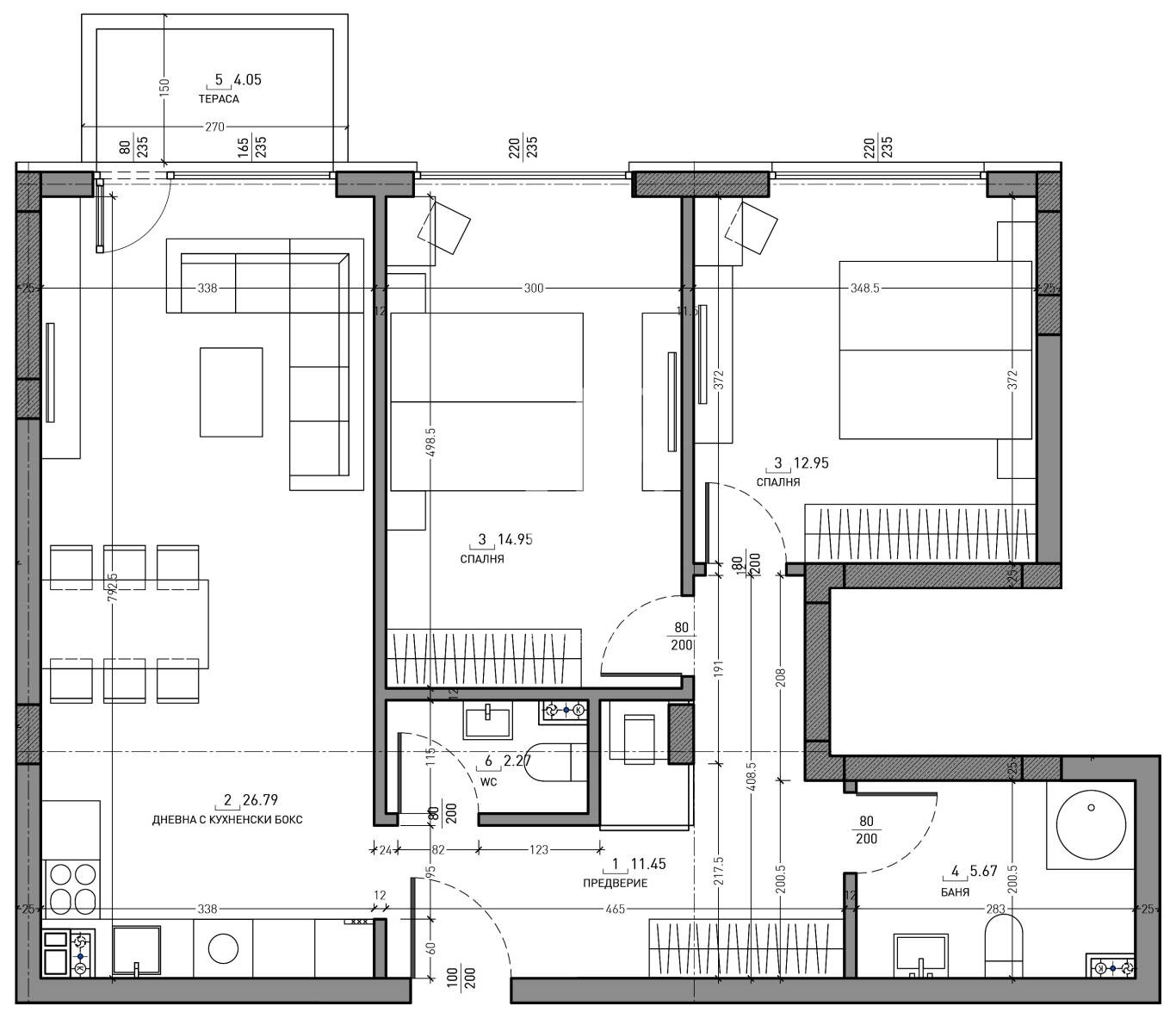
Апартаментът е ситуиран на последен четвърти етаж, с изложение изток - запад, което осигурява естествена светлина през целия ден. Имотът е с площ от 130 кв.м. и включва просторна дневна с кухня и трапезария, две спални, две бани с тоалетна, складово помещение и тераса.
В проекта се предлагат апартаменти с една, две, три или четири спални, включително партерни с прилежащи дворове, с гъвкави схеми за плащане.
Преддверие, дневна с кухня и трапезария, две спални, две бани с тоалетна, склад и тераса Ref. ID:24612







