ГЪВКАВИ СХЕМИ НА ПЛАЩАНЕ!
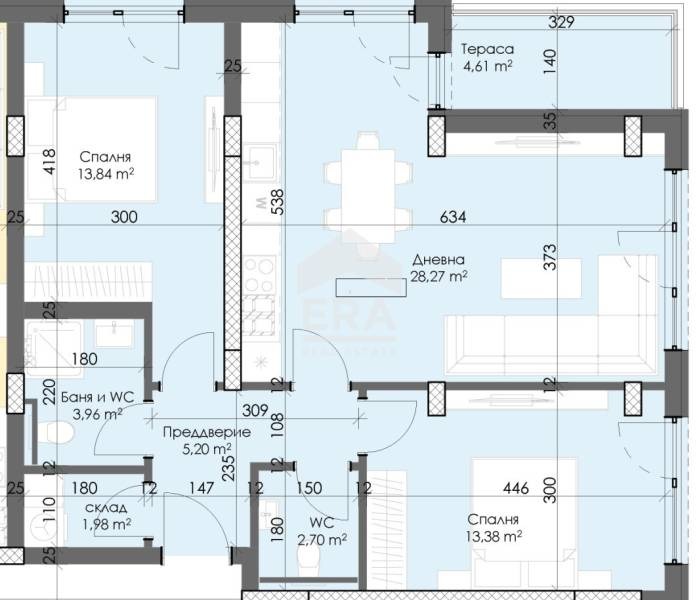
ЕРА Вива предлага просторен тристаен апартамент в новострояща се луксозна сграда в кв. Тракия. Жилището се състои от: преддверие, дневна с трапезария и кухненски бокс, спалня, втора спалня, баня с тоалетна, втора тоалетна, склад и тераса. Апартаментът се издава на: стени шпакловка, под - замазка, изградена ВиК, ел. инсталация с монтирани ключове, контакти и ел. табла, окабеляване за телефон и интернет.
Предимства на имота:
- Просторни помещения, правилни форми и оптимално разпределение на застроената площ;
- Качествено строителство от доказан изпълнител;
- Нисък процент общи части;
- Стилна, красива архитектура;
- Луксозни общи части и фасади;
- Панорамни гледки;
- Осигурено 100% паркиране на добра цена;
- Прекрасна паркова среда.
Отлично местоположение, в близост до парк Лаута, множество търговски обекти, училища, детски градини, спирки на градски транспорт.
Имотът е част от нова, луксозна сграда, която се намира на спокойно и тихо място, и в същото време урбанизирано с лесен и асфалтиран достъп. Ситуиран е встрани от натоварения трафик, но същевременно с бърз достъп до главни пътни артерии. Нов проект на доказан инвеститор с дългогодишен опит и отлична репутация.
Жилището е чудесна покупка, както за живеене, така и за отдаване под наем.
Инвестицията в недвижим имот е най- сигурният начин да съхраним парите си от инфлационно обезценяване.
ЕРА България е регистриран кредитен посредник към БНБ и предоставя безплатна консултация и съдействие за най-изгодни условия спрямо вашия профил и желание при финансиране на избрания от Вас имот.
Оферта 5801473
Виж всички обяви в eraviva-plovdiv.bazar.bg или тук







