Представяме тристаен апартамент с гледка към Витоша и София, за продажба в сърцето на кв. 'Драгалевци', разположен на 2-ри етаж от 4, в модерна нова сграда пред Акт 16.
Параметри на имота
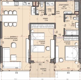
Апартаментът е с площ от 154.43 кв.м и има следното разпределение:
антре, санитарен възел, склад, баня/тоалетна;
просторна дневна с кухня и трапезария;
две спални;
тераса с излаз от всички стаи.
Концепция на сградата
Сградата е с удобна локация и впечатляваща панорамна гледка към града и природата. Отговаря на най-високите стандарти в модерното строителство, съчетава елегантно архитектурно решение на фасадата, удобство и функционалност на вътрешното разпределение. Изпълнението и всички довършителни работи са заложени в изключително висок, луксозен клас. Озеленяването и вертикалната планировка са друг акцент на сградата с голям процент паркова зеленина и различни алпинеуми с екзотична растителност.
Бъдещите обитатели ще се радват на напълно оборудван самостоятелен фитнес с уреди Technogym и SPA център с джакузи, парна баня и сауна.
Има възможност за закупуване на гаражи, намиращи се в сутерена, с пряка топла връзка към апартаментите.
Технически характеристики на сградата:
конструкция монолитна стоманобетонна;
цялостна допълнителна хидроизолация на сутерена;
фасадата е окачена, вентилируема - каменна облицовка с топлоизолираща вата;
допълнителни декоративни елементи от еталбонд;
най-висок клас алуминиева дограма, 6-камерна с троен стъклопакет;
отоплението е газово, захранвано подово със самостоятелен термостат за всяко помещение;
външни и преградни стени - зидария с керамични тухли Wienerberger;
асансьор KONE;
блиндирани входни врати SOLID, обърнати с мрамор;
фоайе и общи части по специален интериорен проект с изцяло каменно вътрешно оформление - ...
Цената на имота е 385 000 евро / 752 994.55 лв. без ДДС или 462 000 евро / 903 593.46 лв. с ДДС. Данъчен кредит може да се ползва при определени условия.
За повече информация свържете се с нас и цитирайте референтния номер на имота. Моля, кажете, че сте видeли обявата в този сайт.
Референтен номер: SOF-126380
Тел: 0884 031 856, 02 402 91 95
Отговорен брокер:Инна Дочева
Виж всички обяви в luximmo.bazar.bg или тук
        
       
         
         
         
         
         
         
         
         
         
         
         
         
         
         
         
         
         
             
             
             
             
             
             
             
             
             
             
             
             
             
             
             
             
            


