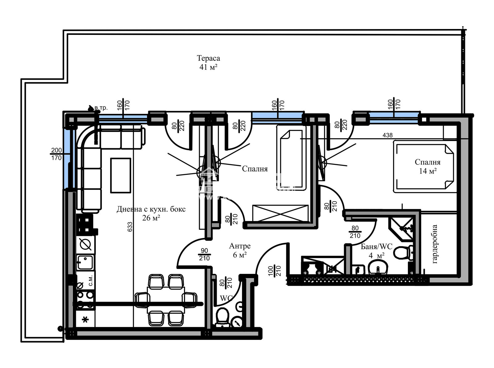
Оферта 65730: Представяме Ви новоизградена малка сграда, проектирана така, че да създаде максимален комфорт и уют в един от най- бързо развиващите се райони с лесен и удобен достъп и транспорт към центъра на Града. Жилището се състои от дневна 26кв.м. с кухненски бокс, две самостоятелни спални, баня с тоалетна, втори санитарен възел, килер, входно антре и една панорамна тераса с достъп от всички стаи. Сградата се намира на тихо и спокойно място в близост до всички необходими комуникации, голям хранителен хипермаркет, Ритейл Парк , училище и детска градина. Обектът се строи от фирма с доказан опит, като разполагаме с готови сгради и можем да Ви покажем качеството на изпълнение, което се осъществява с висококачествени материали и съвременни технологии, по европейски стандарт, петкамерна PVC дограма, червена Австрийска Тухла, масивна Блиндирана входна врата с 4-странно заключване, сензорно осветление, хидравлични асансьори с огледална кабина. Свободни паркоместа!!! Възможност за Закупуване чрез Банков Кредит или разсрочено изплащане по време на строителството!!! Възползвайте се от възможността да живеете в малка сграда на спокойно място!!!
ВИЖТЕ ОЩЕ ИЗГОДНИ ОФЕРТИ НА https://www.kondorimoti.com/ С ЕЖЕДНЕВНА АКТУАЛИЗАЦИЯ!







