Компания X представя на Вашето внимание тристаен апартамент в кв. Кючук Париж.
МЕСТОПОЛОЖЕНИЕ: Квартал Кючук Париж е един от историческите квартали в град Пловдив, който се намира в централната част на града.
СТРОИТЕЛСТВО: Апартаментът се намира на 4-ти етаж, тухла.
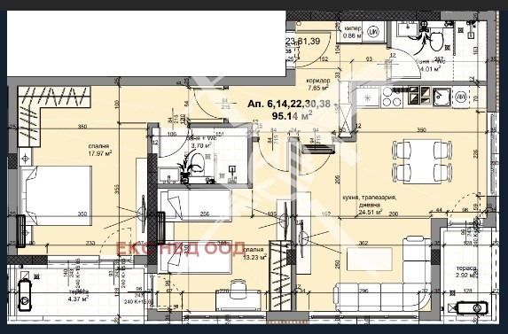
РАЗПРЕДЕЛЕНИЕ: Жилището разполага с площ от 111кв.м. дневна с хол, две спални, баня, тоалета, килер, две тераси.
СЪСТОЯНИЕ: В строеж.
Заповядайте да Ви го покажем. Използвайки нашите услуги Вие ще превърнете закупуването на новия си дом в едно приятно изживяване, ще получите персонален консултант, съдействие при кандидатстване за кредит от всички банки в България, интериорни дизайнери и екип, който да се погрижи за нужните документи по Вашата сделка. На Ваше разположение сме всеки ден, от понеделник до неделя от 09:00 до 20:00ч. Възползвайте се от безплатна консултация в наш офис, където ще ви спестим време и ще ви запознаем с всички актуални имоти в България, отговарящи на Вашето търсене. Свържете се с нас нужен Вие само кодът на имотът:279-12815







