АПАРТАМЕНТ С ДВЕ СПАЛНИ!НАЙ-НИСКА ЦЕНА ЗА РАЙОНА! СГРАДА ПРЕД А14
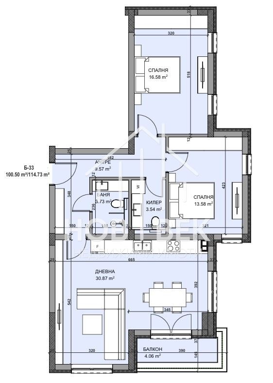
Агенция за недвижими имоти НОВ ВЕК, ви представя ЕКСКЛУЗИВЕН ПРОЕКТ, сграда VARNENCHIK 2&3 ! СГРАДА ПРЕД А14, РАЗПОЛОЖЕНА В НАЙ- ХУБАВАТА ЧАСТ НА КВАРТАЛ ВЛАДИСЛАВ ВАРНЕНЧИК! Апартаментът (Б-33) е със югоизточно изложение, с обща жилищна площ от 114,73 кв.м и чиста жилищна площ 100,50 м2.Състои се от: коридор, килер, дневна с кухня и трапезария,две спални, балкон, баня с тоалетна. Към всеки имот са включени съответните идеални части от общите части на сградата, както и от земята върху която е бъде изграден обекта. Сградата е разположена под бул. 3-ти март, близо до магазини KAUFLAND и JUMBO. Новите собственици ще имат на разположение всичко необходимо на пешеходно разстояние. Магазини, аптеки, парк с алеи за разходка и обособени места за домашни любимци, спирка на градски транспорт с редовни линии до всички части на града, училища и детски градини, фитнес зала, банки, пазар, офиси на спедиторски компании и много други! ПРЕДИМСТВА НА СГРАДАТА: Функционални разпределения за максимален комфорт и уют на обитаване; Светли и просторни стаи с правилни форми, всяко жилище разполага с 1 или 2 сервизни помещения; Панорамна гледка към Варненското езеро и града; Качествено изпълнение до степен на завършеност БДС, подготвено за довършителни дейности; Възможност за обединение на апартаменти при нужда от по- голяма площ; БОНУСИ ПРИ ПОКУПКА НА ИМОТ В СГРАДАТА: Безплатна консултация с интериорен дизайнер; Отстъпка при поръчка на проект за интериорен дизайн; Отстъпка от материалите, необходими за довършителни работи; Отстъпка при поръчка на обзавеждане и оборудване; Опция за завършване до ключ.
Код на обявата: 620
тел.: 0876777309



