ДИРЕКТНО ОТ СТРОИТЕЛЯ!
БЕЗ КОМИСИОНА ОТ КУПУВАЧА!
АКТИВ ИМОТИ представя:
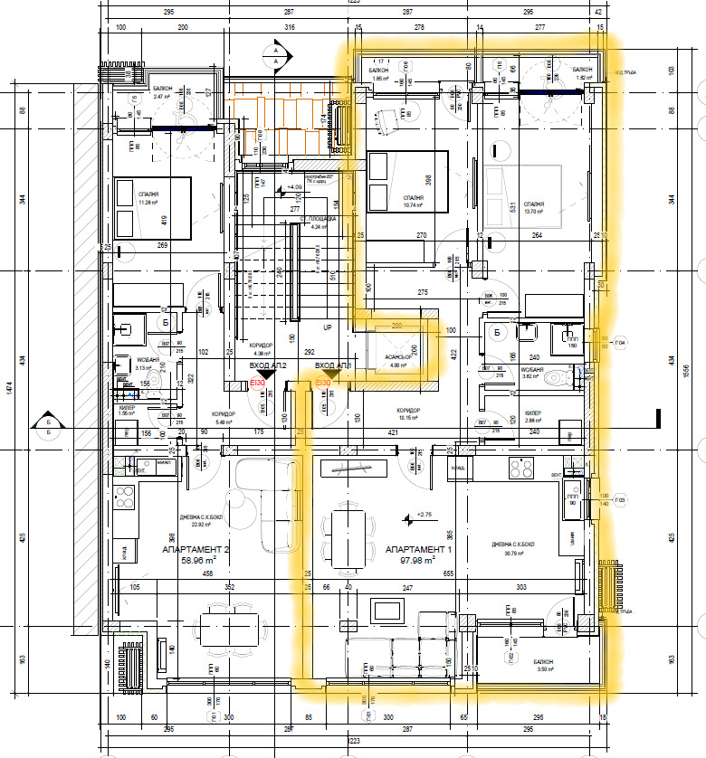
Тристаен апартамент
Местонахождение: ул. Катрафилов 13, кв. Вароша
Разположен на първи жилищен етаж с асансьор
Площ: 117.17 кв. м.
Разпределение:
Входно преддверие с коридор, дневен тракт с кухненски бокс и тераса,
родителска спалня с тераса, детска стая с тераса,
баня и тоалетна, килер.
Изложение: Юг/Северозапад
Съдействаме за получаване на ипотечен кредит
Реф. 4217
Технически характеристики:
Конструкция монолитна стоманобетонна безгредова
Тухли: 25 см
Вътрешни стени и тавани: машинно гипсова мазилка
Подове: изравнителна замазка
Цялостна система за топлоизолация 10 см
Силикатна мазилка
Висококачествена PVC дограма
Луксозни общи части
Асансьор
Домофонна система
Електроинсталация с ключове и контакти
Изградена ВиК инсталация до тапа, монтирани водомери с
дистанционно отчитане
Направено окабеляване за интернет, телевизия, телефон
Входни блиндирани врати
-----------------------------------------------------------------------------------------
РАЗЧИТАЙТЕ НА НАС ПРИ ИЗБОРА НА ВАШИЯ ИМОТ!
АКТИВ ИМОТИ - ТРАДИЦИЯ, КАЧЕСТВО, ДОВЕРИЕ, СИГУРНОСТ!
-----------------------------------------------------------------------------------------
Виж всички обяви в activebg.bazar.bg или тук
        
       
         
         
         
             
             
            


