Предлагаме Ви за продажба тристаен апартамент в новострояща се луксозна жилищна сграда, изпълнявана по Европейски стандарт, с модерна визия и стил.
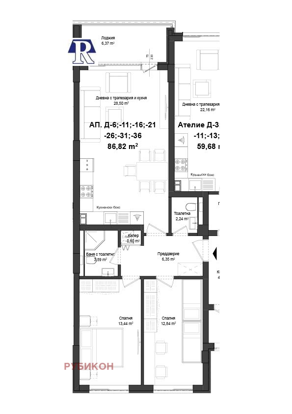
Разпределението на апартамента е както следва: дневна с кухненски бокс 28.50кв.м., спалня 13.44кв.м., спалня 12.84кв.м., баня с тоалетна 3.59кв.м., тоалетна 2.24кв.м., предверие 6.35кв.м., лоджия 6.37кв.м. и склад 0.78кв.м. Застроена площ 86,82кв.м. Общи части - 12,21 кв.м. Общо площ - 99.03кв.м. Изложение- Юг/Север Към жилището имате възможност да закупите и паркомясто или гараж, които се заплащат допълнително.
Утвърден инвеститор с безупречна репутация!
Адресът на офиса ни в Пловдив е бул. Източен 47, етаж 2, офис 7







