Компания X представя на Вашето внимание тристаен апартамент в кв. Кършияка.
МЕСТОПОЛОЖЕНИЕ: Кварталът предлага разнообразие от жилищни сгради, както и търговски обекти и услуги, които удовлетворяват нуждите на местните жители. В близост до Кършияка се намират и значими исторически и културни забележителности на града, което го прави атрактивно място за живеене и посещение.
СТРОИТЕЛСТВО: Апартаментът се намира на 10 етаж, тухла.
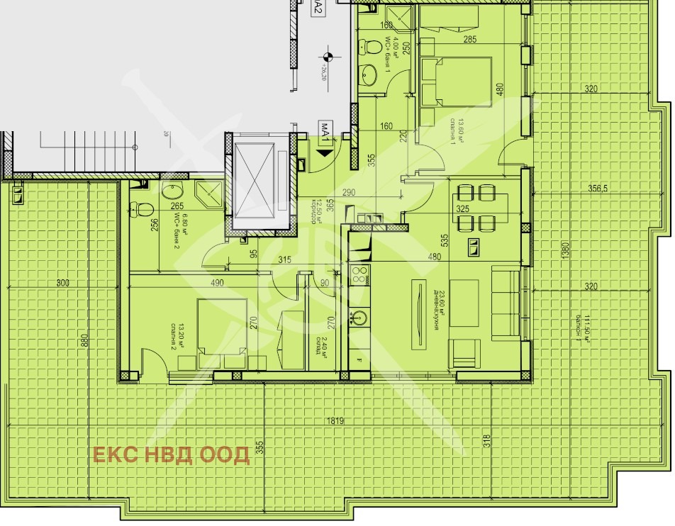
РАЗПРЕДЕЛЕНИЕ: Жилището разполага с площ от 243кв.м. разпределена в дневна с трапезария и кухненски бокс, две спални, баня с тоалетна, тоалетна, тераса.
СЪСТОЯНИЕ: В строеж.
Заповядайте да Ви го покажем. Използвайки нашите услуги Вие ще превърнете закупуването на новия си дом в едно приятно изживяване, ще получите персонален консултант, съдействие при кандидатстване за кредит от всички банки в България, интериорни дизайнери и екип, който да се погрижи за нужните документи по Вашата сделка. На Ваше разположение сме всеки ден, от понеделник до неделя от 09:00 до 20:00ч. Възползвайте се от безплатна консултация в наш офис, където ще ви спестим време и ще ви запознаем с всички актуални имоти в България, отговарящи на Вашето търсене. Свържете се с нас нужен Вие само кодът на имотът:204-19751







