БЕЗ КОМИСИОННА ОТ КУПУВАЧ!
Агенция Trust Broker Solutions предлага на Вашето внимание тристаен апартамент в ж.к. Дружба 1.
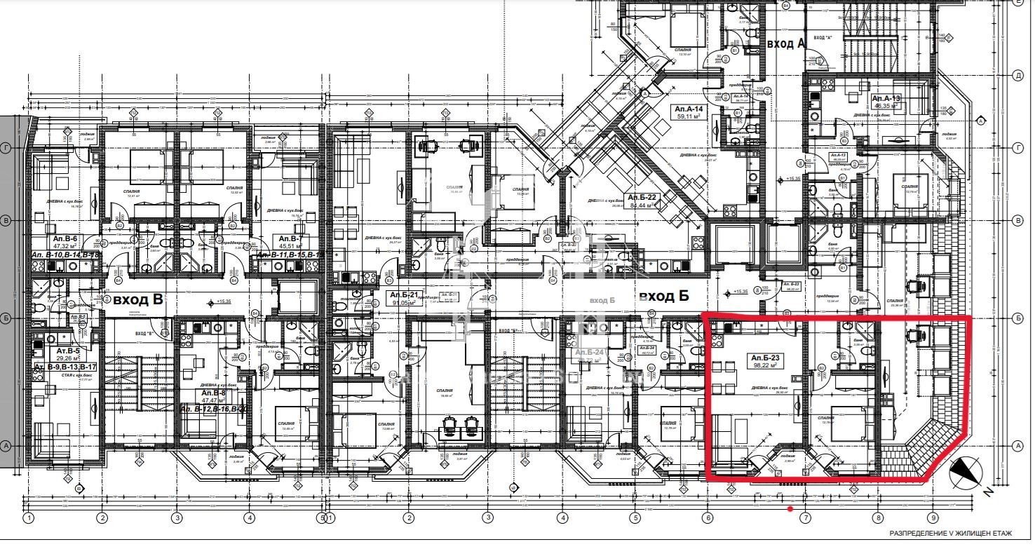
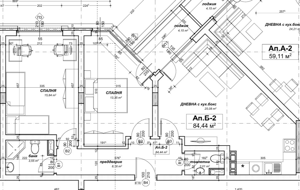
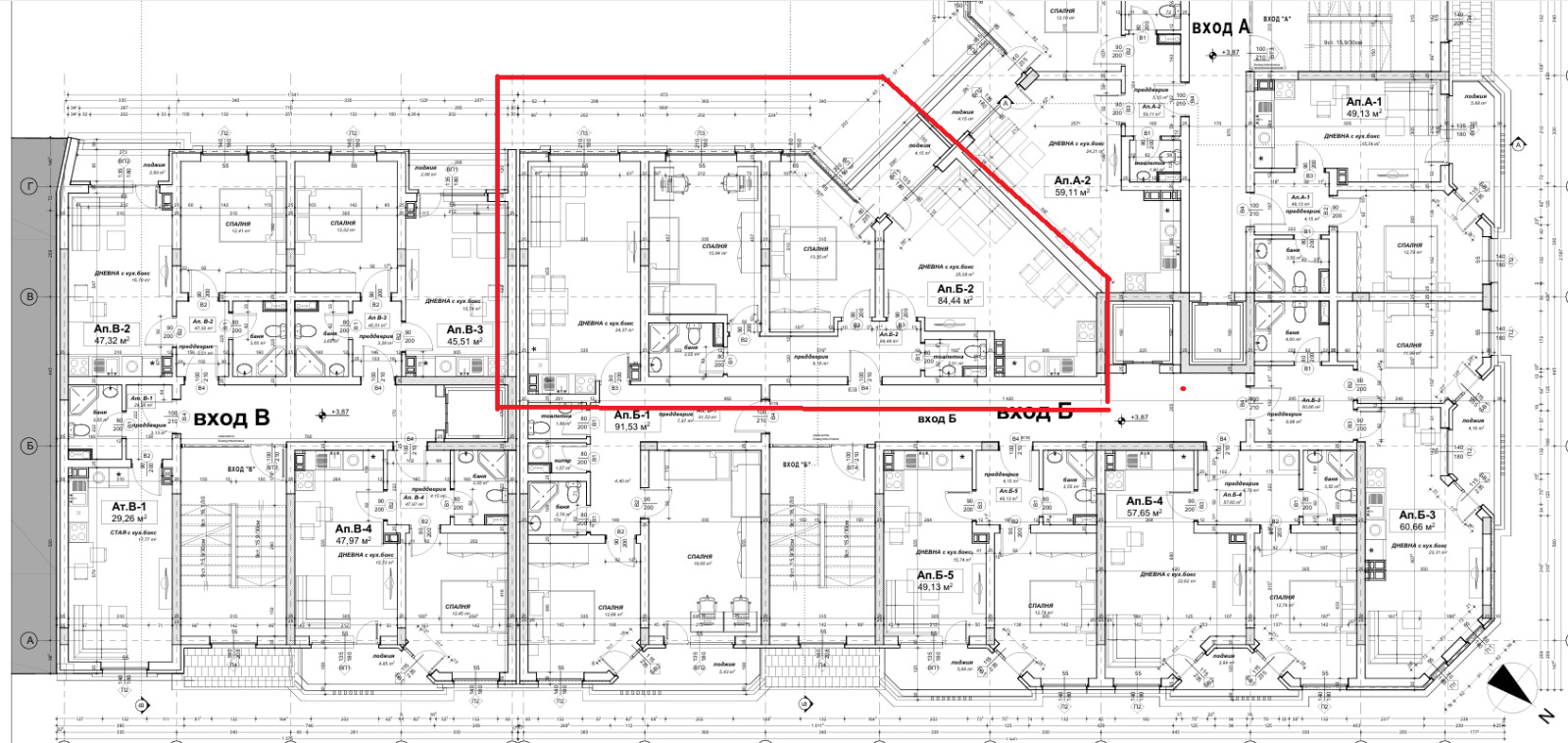
РАЗПРЕДЕЛЕНИЕ:
Апартамента се състои от коридор, 2 стаи , хол, кухня, 2 бани с тоалетна.
ЛОКАЦИЯ:
Намира се в ж.к. Дружба 1 - Списаревски.
АКЦЕНТИ:
✅ Отлична локация
✅ Отлично развит квартал.
ДОПЪЛНИТЕЛНА ИНФОРМАЦИЯ:
✅ Вид строителство: Тухла.
✅ Етаж: 5 от 5 .
✅ Площ: 133.06м2
Агенция Trust Broker Solutions предлага напълно безплатно кредитни консултации. Работим с всички банки в страната, на преференциални условия. Кредитният ни отдел е регистриран в БНБ като независим банков консултант по ипотечно кредитиране.
За още оферти посетете сайта ни: tbsestates.bg или се обадете на 0878878386.
Виж всички обяви в tbsestates.bazar.bg или тук







