Сграда с АКТ 16!
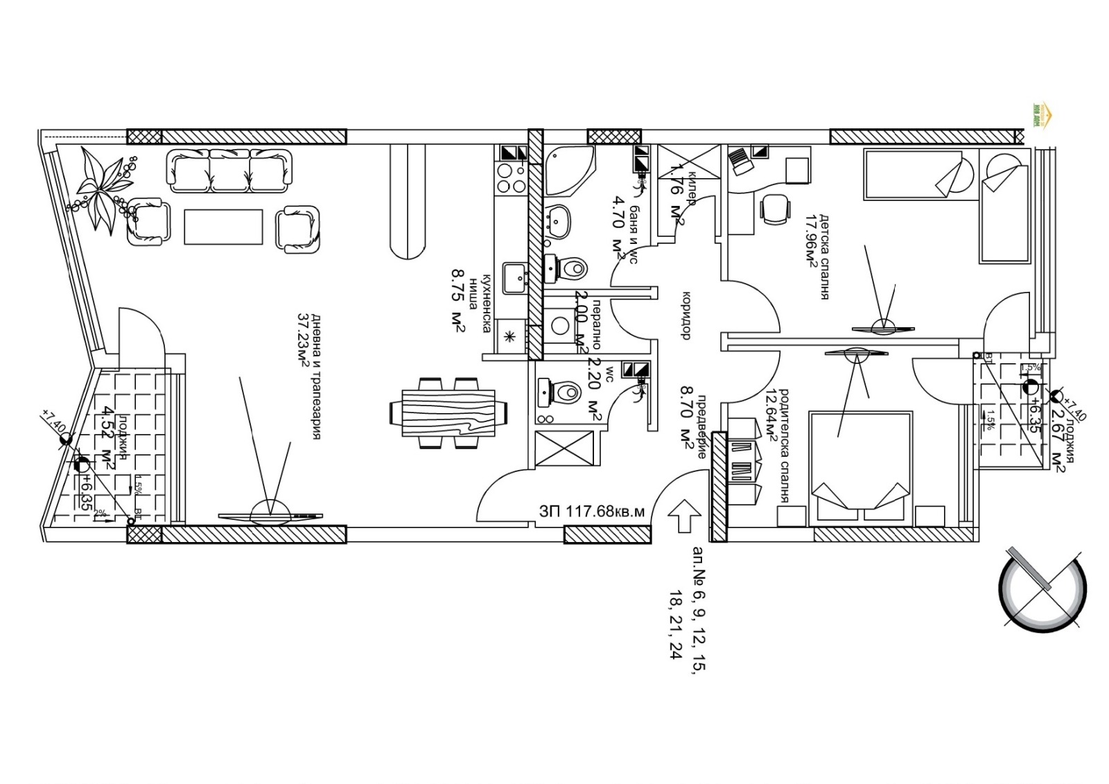
Просторно функционално жилище с площ 134 кв.м, в новоизграден жилищен комплекс 'КОЛОДРУМА', находящ се на ул. 'Асеновградско шосе' 4. Отлична локация, в близост до Център, хипермаркети, училище, детски градини и ясли, както и автобусни спирки.
- Разпределение: просторна дневна и кухненски кът с красива панорамна гледка към тепетата и Стария град, две големи спални с изглед към Родопите, дрешник, перално помещение, баня с тоалетна, втора тоалетна, две тераси.
Разполагаме с избор на етажи.
- Изложение: север-юг
- Сградата разполага с подземен и наземен паркинг.
Виж всички обяви в novdom.bazar.bg или тук







