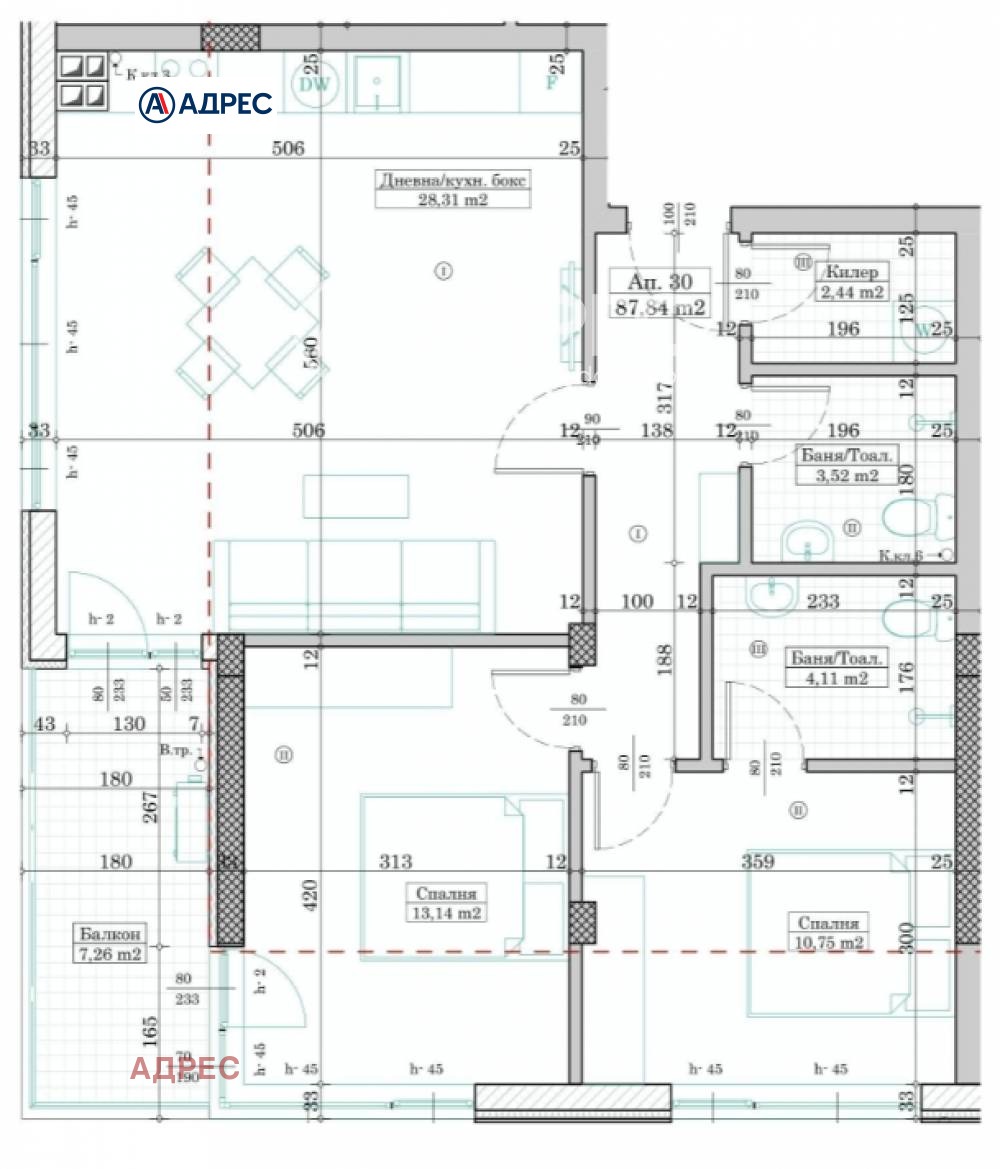
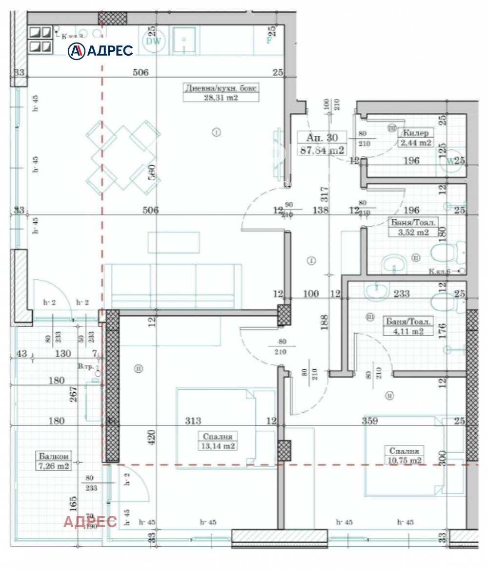
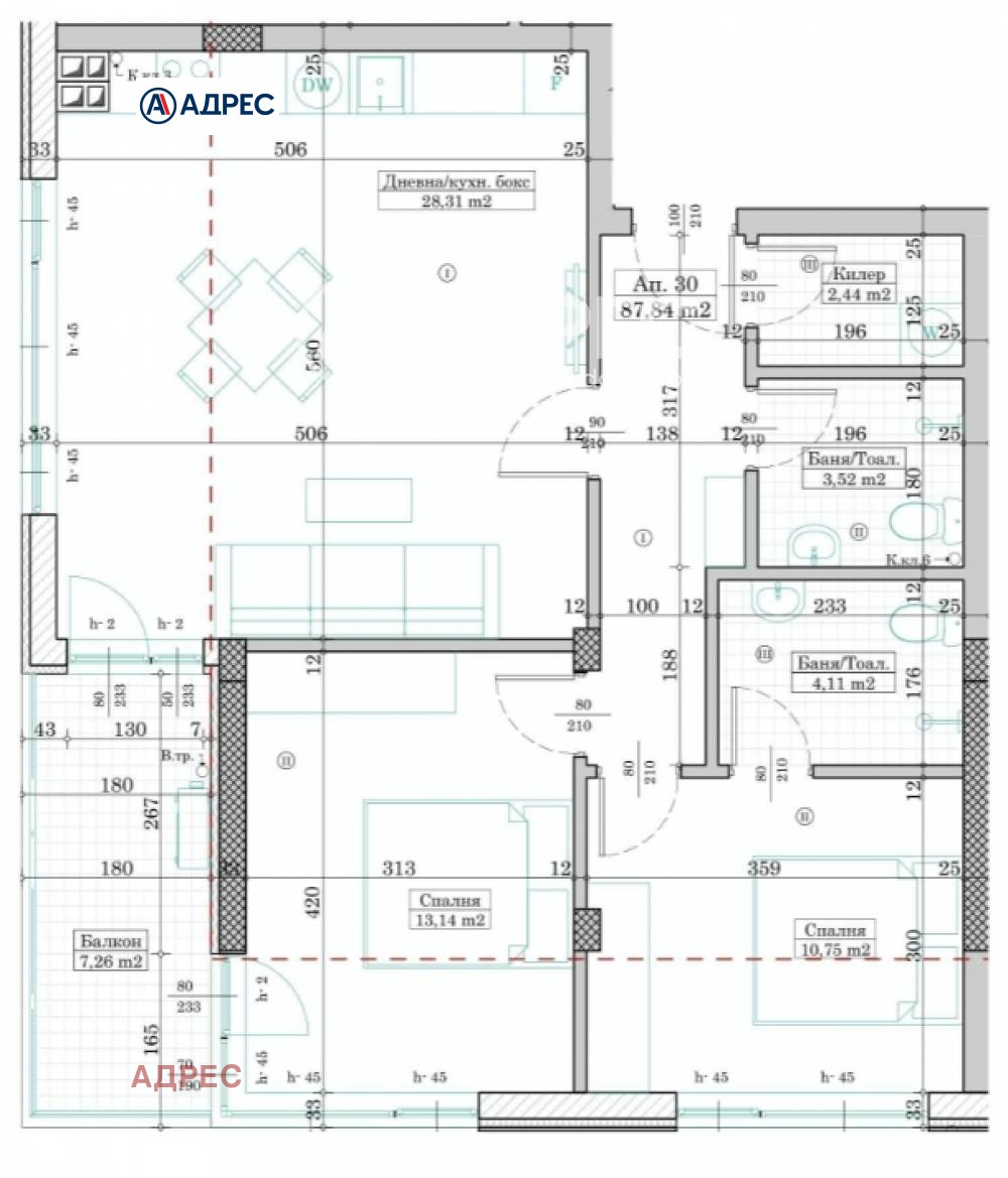
Слънчев, уютен и функционален Тристаен апартамент в град Варна.Този дом разполага с дневна, две големи спални , баня и тоалет, килер и тераса. Сградата е проектирана с внимание към детайла, съчетава изтънчена модерност и естествена хармония. С възможност за закупуване на паркомясто.
В близост до УМБАЛ СВЕТА МАРИНА - Варна, хранителни магазини и офис учреждения, Технически университет Варна.
Тухлена масивна сграда с асансьор. Планирани са общо 58 двустайни и тристайни апартамента, всеки със светли и просторни помещения и тераси, от които можете да се насладите на красотата на природата около вас.
Отлично разпределение! Големина на апартаментите! Зеленина и простор пред сградата! Разсрочено плащане! Луксозно изпълнение! Доказан инвеститор с 30 години опит!
Обади се сега и цитирай този код 605329







