ПЛАТИ 10% СЕГА на Предварителен договор И 90% НА АКТ 16 - 2025г. !!!
Акт 14!!!
Агенция за недвижими имоти Имотен Център предлага на вашето внимание тристаен апартамент в жилищен комплекс, разположен далеч от градски шум , с атрактивно местоположение. В близост са разположени метростанция 'Бизнес Парк', магазини 'Кауфланд', 'Фантастико', 'Технополис', 'Спорт Депо', 'КОМО'.
В процес на строителство. Очаквано завършване - септември 2025 г.
Проектът се състои от 3 входа с 9 надземни и 2 подземни нива с паркоместа, гаражи и складови помещения. Има избор от едностайни, двустайни, тристайни и четиристайни апартаменти. За комфорт и сигурност на собствениците се предвижда денонощна жива охрана и видеонаблюдение.
Жилищата се издават в степен на завършеност по БДС, с 5-камерна PVC дограма, троен стъклопакет, всесезонни стъкла, цвят графит и климатична инсталация във всички помещения. Отоплението е на ТЕЦ.
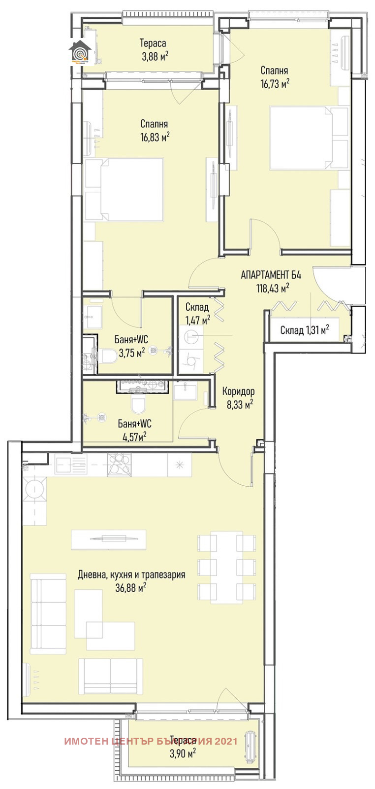
* Апартамента е разположен на 2ри
етаж от 10.
* Чиста площ 120м2.
* Изложение - Ю/С.
*Възможност за покупка на паркомясто или гараж.
Нашите клиенти получават и цялостно съдействие и задължително НАЙ-ИЗГОДНИ условия за финансиране от всички банкови институции.
При интерес към имота, въпроси и още актуални предложения моля свържете се с нас на посочения телефон.
Водещ брокер: Андреа Минчева







