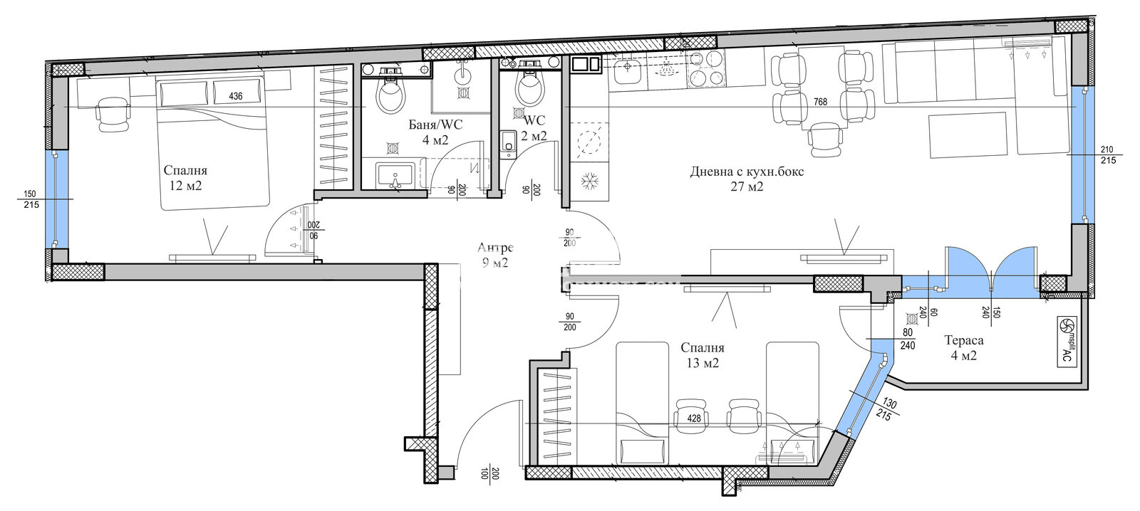
Оферта 65276: МАЛКА ЛУКСОЗНА СГРАДА !!! СТРАХОТНА ЛОКАЦИЯ !!! Имаме удоволствието да ви предложим новоизграждаща се сграда на акт 14 в близост до стадион Спартак на тиха и спокойна улица. !!! Малка бутикова сграда в един от най-предпочитаните части на Кючук париж . Апартаментът се състои от входно антре, прекрасен хол с кухненски бокс 27кв.м., две спални, баня с тоалетна, втора тоалетна и една тераса. Строителството ще се изпълни по всички европейски изисквания за качество: под - замазка, стени шпакловка, ВиК до тапа, Ел. инсталация до ключ, пълно окабеляване, масивна входна блиндирана врата, алуминиева дограма . Луксозно завършване на общи части. Проблемът с паркирането е решен с партерни и подземни Гаражи и Паркоместа във вътрешния двор и в подземието. Предпочитан район поради бързия достъп до центъра на града, множеството детски градини, университети, паркови среди и зелени зони, както и бърз излаз на централни възлови булеварди. Разсрочено плащане в рамките на строителството.
ВИЖТЕ ОЩЕ ИЗГОДНИ ОФЕРТИ НА https://www.kondorimoti.com/ С ЕЖЕДНЕВНА АКТУАЛИЗАЦИЯ!







