ВИП КОНСУЛТ Варна предлага НОВ проект за стоеж на жилищна сграда в района на Кайсиева градина,
в непосредствена близост до бул.3 март,парк и магазини.Сградата ще бъде със смесено предназначение,
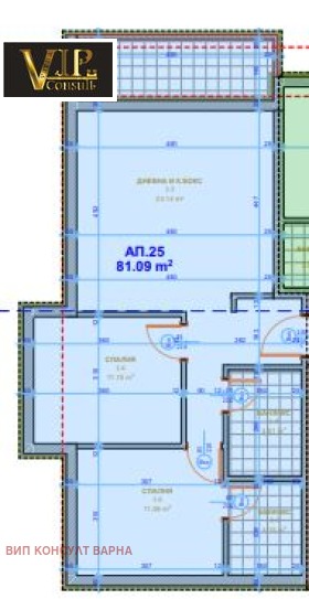
която ще има двустайни,тристайни апартаменти,магазини,подземни и надземни паркоместа и гаражи и много зелени площи.Сградата ще разполага с два безшумни асансьора,тя ще бъде 10 етажна,като 1 етаж е търговска част ,а 2,3,4 ще бъде апарт-хотел(апарт- хотела са жилища,които са предназначени за живеене или отдаване под наем чрез букинк или нощувки)!Предлагаме на вашето внимание ап.25 на 9ет.в апарт хотел,
който е с обща площ 99.51кв.м по площообразуване и идеална част от дворното място
Разположението на апартамента югоизток.Апартамента е със следното разположение:
2 спални,първата от които е 11.15кв.м,а втората 11.06кв.дневна с кухненски бокс 23.14кв.м,2 бани с тоалет , първата е 4,51кв.м,а втората 4.15кв.м и тераса.
Схема на плащане:20 процента резервационен депозит до разрешение на строеж.Фиксираните цени в договора са крайни и не подлежат на промяна до въвеждане на сградата в експлатация!
Предлагаме на своите клиенти завършване до ключ на себестойност.Съдействие за отпускане на банков кредит след акт 14 през Кредит център при преференциален лихвен процент. При закупуване на имот от инвеститора не дължите комисионна!
За повече информация отностно свободни обекти,цени схеми на плащане и въпроси свързани с обекта свържете се с нас :0884 20 38 99 Валентина Атанасова,
или на Имейл [email protected]
оф 3012







