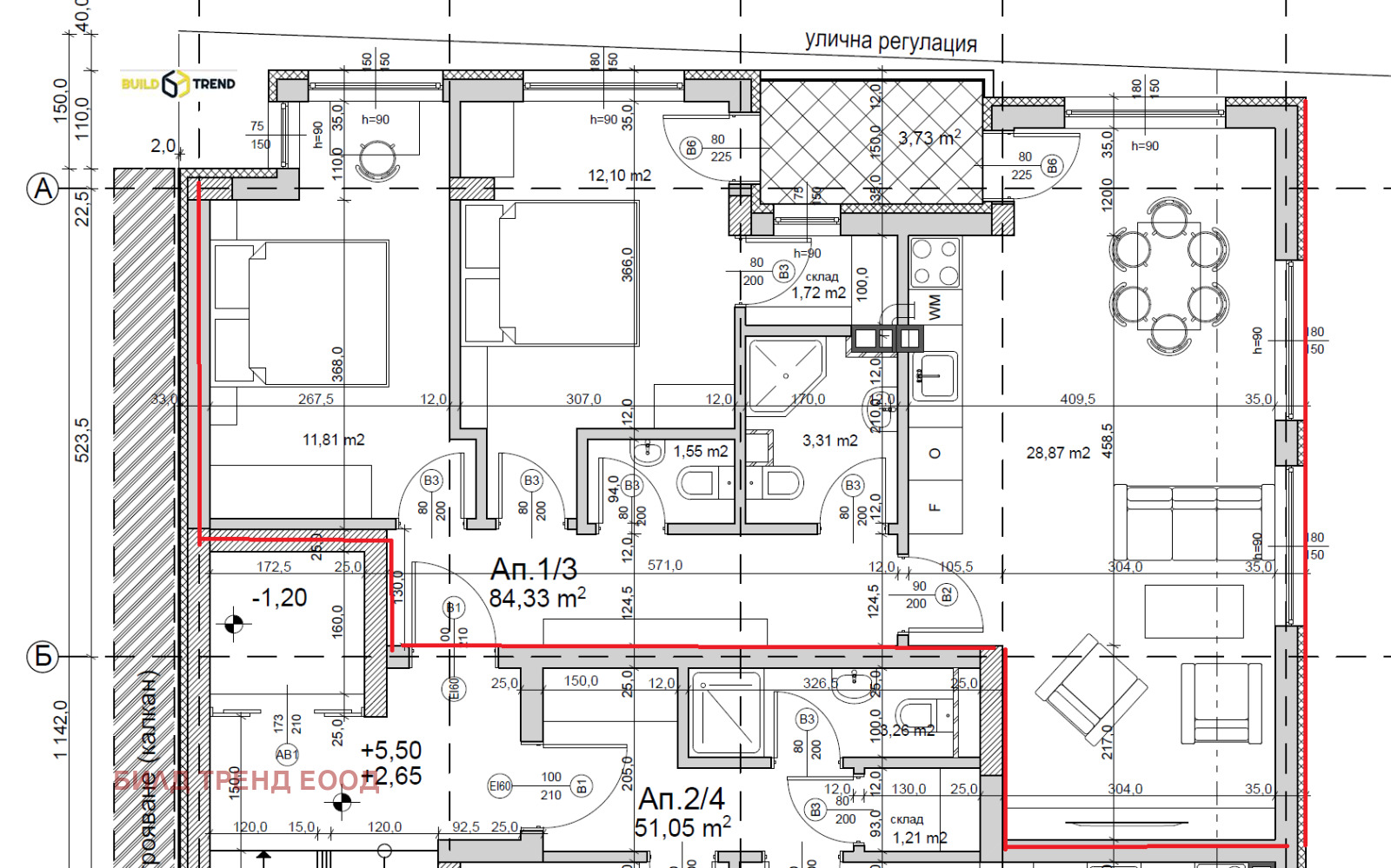
Предлагаме за продажба елегантен тристаен апартамент с обща площ 101 кв.м., разположен на първи жилищен етаж в модерна новострояща се сграда на ул. Бръшлянска низина 7.
Жилището е с функционално разпределение и се състои от две спални, просторна дневна с кухненски бокс, баня с тоалетна, отделна тоалетна, склад и западна тераса.
Апартаментът се издава на шпакловка и замазка, с изградени ел. и ВиК инсталации и монтирана външна блиндирана врата.
Сградата е с луксозни общи части, асансьор Orona и висок клас материали.
В близост се намират две метростанции, на около 15 минути пеша. Без комисионна, директно от инвеститор, с гъвкави схеми на плащане. Разрешение за ползване: 03.2027 г.







