рация в кв. 'Железник' в Стара Загора. Предлага разнообразие от жилища, с различна площ, изложение и разпределение.
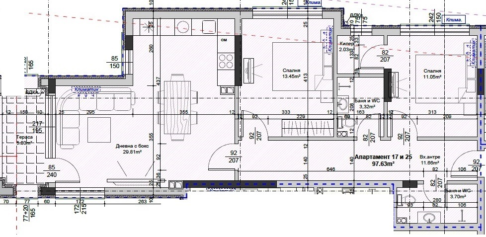
ТРИСТАЕН апартамент с площ от 118 кв. метра.
Състои се от антре, всекидневна с кухненски бокс, две спални, баня и тоалетна и балкон, с изложение юг/ запад. ТРИСТАЙНИЯТ апартамент ще бъде издаден в следния вид: стени и тавани шпакловка, под замазка, тераси гранитогрес, ел. инсталация до фасунга и ключ, ПВЦ дограма. Възможност за закупуване на гараж.
Обади се СЕГА и цитирай този код: 622725
Сграда
ТРИСТАЕН апартамент в град Стара Загора, в кооперация на пет етажа с луксозни общи части и асансьор.
Предимства
* Разсрочено плащане;
* Избор на етаж
* Четири изложения
Местоположение
ТРИСТАЕН апартамент в град Стара Загора, в кв. Железник запад, на тихо място, в близост- хипермаркет, автобусна спирка.







