Translations in other languages:
All real estate ads published on imot.bg have been translated into English and published on the partner site
Получихте нова обява по филтър





Промяна на цена на наблюдавана обява


стара цена
нова цена
imot.bg – обяви за продажби и наеми на имоти
Сайт за имоти №1
Translations in other languages:
All real estate ads published on imot.bg have been translated into English and published on the partner site
ДОБАВИ ОБЯВА Редакция на обява
Начало Публикуване Търсене Нови сгради Агенции Новини Кредити + Още... Моят имот
Продава 3-СТАЕН
град Пловдив, Кършияка
209 500 €
409 746.39 лв.

(1 703 €, 3 330.78 лв./m2)
Не се начислява ДДС
Коригирана в 12:20 на 21 октомври, 2025 год.
Обявата е посетена 60 пъти.
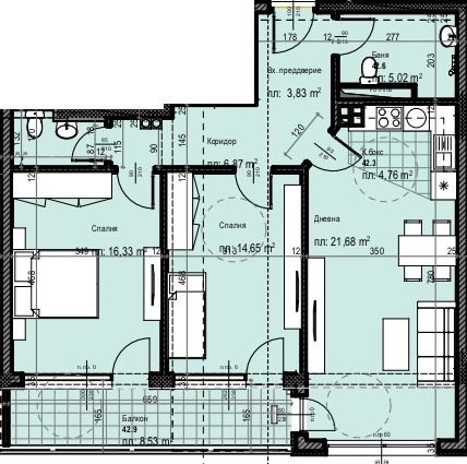
Площ:
123 m2
Етаж:
4-ти от 10
Строителство:
Тухла, Въведен в експлоатация

Описание на имота:


Оф.79749 Предлагаме ви жилище в новоизграждаща се съвременна сграда с отлично местоположение в кв. Кършияка. Етажа е четвърти с изложение юг и прекрасна гледка. Състои се от коридор, хол с кухненски бокс, две непреходни спални, баня с тоалетна, втора тоалетна, просторна тераса и прилежащо избено помещение. Сградата ще бъде завършена прецизно и отговаряща на всички съвременни изисквания за качество. Хидро и топло изолация, луксозно завършване на общите части, хидравличен асансьор. Намира се в близост до детски ясли и градини, училища, спирки на градски транспорт и търговски обекти. Услугите, които предлага нашата фирма са - Безплатни юридически консултации, съдействие при одобрение на ипотечен, потребителски и всякакъв друг кредит при възможно най-добри условия за клиента. Работим с всички банки. Безплатни огледи. За контакти: Димитър Ветин 0896338198
Виж всички обяви в lidera.bazar.bg или тук
Особености
Тухла
Асансьор
За контакт:
0896338198

Този имот се предлага само на частни лица
Брокер:
Димитър Ветин
0896338198
Още оферти от брокера: Продава | Дава под наем | Купува | Наема
Агенция:
ЛИДЕРА
032/622 227; 0898433193; 0882/646 888
ЛИДЕРА logo
Медал за прослужено време
В imot.bg от 2004 г.
lidera.imot.bg
Адрес:
област Пловдив, гр. Пловдив, ул. 'Гладстон' 56, ет.2
http://lidera.imot.bg
ИЗПРАТИ ЗАПИТВАНЕ
ИЗПРАТИ ЗАПИТВАНЕТО

Продава 3-СТАЕН
град Пловдив, Кършияка
Обява: 1c171932192568114

209 500 €
409 746.39 лв.
(1 703 €, 3 330.78 лв./m2)

Не се начислява ДДС
ЗАПАЗИ ОБЯВАТА

Местоположение: град Пловдив, Кършияка

Виж още имоти от Пловдив или още Тристайни Апартаменти в Пловдив
Допълнителни данни за имотите в района и сравнение с други райони: Търсене в АРХИВ 2013 - 2025 г.











Добави/редактирай
вид имот и район
*Средните цени са определени чрез медиана стойност.
Още обяви в imot.bg
КОНТАКТИ | SMS КОДОВЕ | СТАТИСТИКА | ПОМОЩ | ОБЩИ УСЛОВИЯ | РЕКЛАМА | ТОП ОФЕРТА | Въпроси и предложения към imot.bg
Резон Медия | Имоти | Автомобили | Работа | Новини | Обяви | Преводи и легализация 2002-2025 ® Copyright imot.bg
© imot.bg ползва и препоръчва хостинг услугите на Bulinfo.net
Следвайте ни в: