Детайлна информация на : www.novdom1.bg - Реф. : 71305
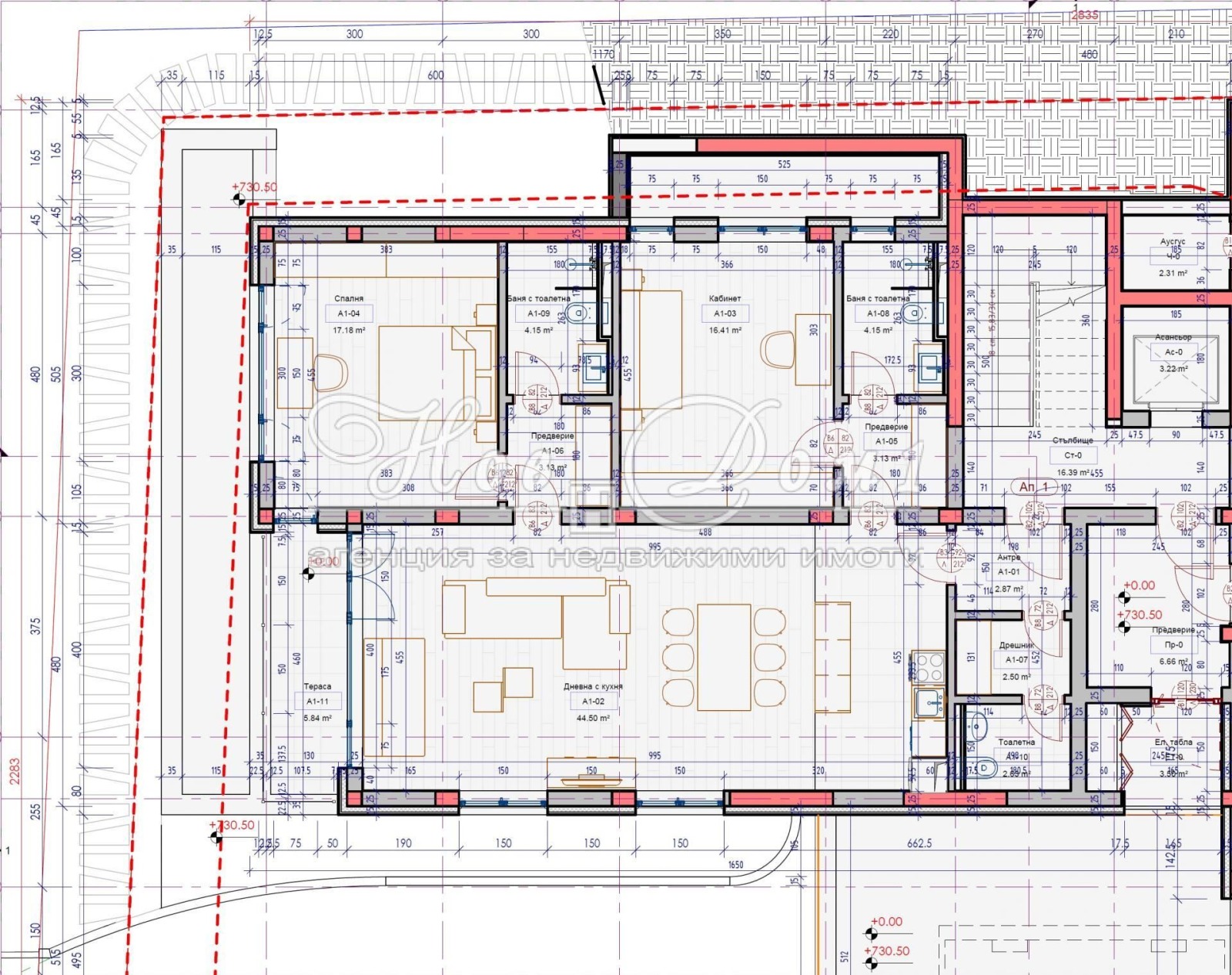
Имотът Представлява: Антре; дрешник; тоалетна за гости; просторен дневен тракт над 44 кв.м. с кухненска част в него, място за мека мебел и хранене с излаз на тераса и прилежащ озеленен двор. Две спални всяка със самостоятелна баня с тоалет и антре. Застроена площ - 119,07кв.м. , Разгъната застроена площ - 146,99кв.м. и 21,98кв.м. двор. Към апартамента има прилежащи ид.ч. земя и складово помещение от 8,33 кв.м. Опция за паркомясто на цени от 35 000 .
Състояние : Имотът се издава съгласно БДС Екстериорна блиндирана врата. Под : нивелирана замазка подготвена за полагане на гранитогрес, паркет или настилка по Ваш избор. Стени : машинно обработена гипсова мазилка с турбозол подготвена за боя или тапет по ваш избор. Мокри Помещения : ръчно обработена циментова мазилка подготвена за полагане на фаянс и теракота .ВиК инсталация на тапа . ЕЛ инсталация : контакти, ключ и фасонки.
Отлична Локация: Имота се намира в един от най-предпочитаните за живеене и инвестиция райони на град София - в.з. Киноцентъра по устието на Дреновичка река. Лесен и бърз достъп до главни пътни артерии, училища, детски градини, автобусни спирки, заведения и туристически атракции.
Строителство: Висококачествено Ново Строителство стоманобетонна конструкция посрещащи всички норми за сеизмичност. Монолитна зидария изпълнена с най-висок клас Австрийски керамични блокове на фирмата Wienerberger Porotherm 25 N+F Light . Висок клас дограма с 4-сезонен стъклопакет. Топлоизолационна система - каменна вата. Силикат-силиконова фасадна мазилка с елементи на Еталбонд и облицовка от камък.
Сградата: Луксозно завършени общи части на естествен гранит, парапети от ковано желязо, хидравличен асансьор с долно машинно гарантиращ безшумната работа на съоръжението. Облицовка на фасадата с естествен камък . Домофона система за контролиран достъп в сградата и видеонаблюдение.
Забележка : Горепосочените разпределения и визуализации са предоставени и одобрени от собственика, същите са публикувани с неговото съгласие ! Имотът се издава по 'БДС' и е със статут на апартамент, което го прави идеален за инвестиция и отдаване под наем !
НОВ ДОМ 1 : Компанията разполага с : Юридически Отдел - извършващ всички необходими юридически и технически проверки на имота, организира всички етапи на сделката до нейното финализиране с нотариално прехвърляне на имота. Кредитен Отдел - съдействащ за отпускане на банков кредит при възможно най-добри условия за клиента, като избора на банка се определя спрямо нуждите и възможностите на клиента. Строително-Ремонтен Отдел - гарантиращ при нужда цялостен ремонт на вашето жилище до ключ при най-изгодни условия и цени.
Консултант Недвижими Имоти : Иван Димитров - 0890 555 820
Виж всички обяви в novdom1sf.bazar.bg или тук
        
       
         
         
         
         
         
         
         
         
         
         
         
             
             
             
             
             
             
             
             
             
             
            






