Описание
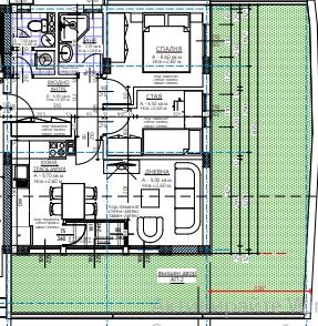
ТРИСТАЕН АПАРТАМЕНТ в новострояща се сграда. Жилището е с площ 73,57 кв.м, разпределени на кухня с дневен тракт, две спални, баня, килер, тоалетна и остъклена тераса. Жилището разполага с 50 кв.м двор. Апартаментът ще бъде предаден на шпакловка и замаска, със завършени баня и тоалетна. Имотът се намира на първи етаж в четириетажна жилищна сграда , състояща се от 8 апартамента, 6 подземни гаража и две паркоместа. Сградата е с модерен дизайн, френски прозорци, които ще допринасят за изобилие от естествена светлина. Проектирана е да бъде с енергоефективност с клас А.Намира се в близост до Зала Арена, Ритейл парк и Пазара.
За допълнителна информация и нови оферти посетете www.address.bg или се обадете на посочения телефонен номер
Брокер: Александър Симеонов
Виж всички обяви в balkani_sh.bazar.bg или тук






