Най- актуалните Имоти са samhome.bg Реф. Номер: 29294
Отлична локация в непосредствена близост до: бул. Васил Левски, бул. 8-ми Приморски Полк, Базар Левски, стадион Черно Море.
Автобусна спирка: 50 метра
Международно летище: 8 километра
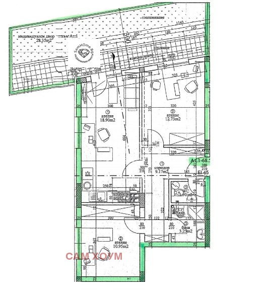
Описание на имота: Дневен тракт 19кв.м. с излас на веранда 28кв.м. , спалня 13кв.м. спалня 11 кв.м., баня с тоалет отделно тоалет.
Чиста Жилищна Площ: 69кв.м.
Състояние: Завършен съгласно БДС.
Сграда: Монолитно тухлено жилищно строителство.
Предимства: Коминукативен район с отлична инфраструктура излас а два главни булеварда, пешеходно разстояние до Морската градина и центъра на града. Двор и две паркоместа.
Недостатъци: Партерен етаж.
Моля цитирайте реф. номер когато се обадите.
Обаждания се приемат между 09:00 и 19:00 всеки работен ден.
Ние ще Ви обърнем внимание и ще вникнем в детайлите на Вашето търсене заповядайте на среща с брокер в Нашият уютен офис. Комплимент за всеки закупен имот Нашите клиенти получават застраховка имущество за една година!
САМ ХОУМ е агенция създадена от брокери с над 15 годишен опит в сферата на недвижимите имоти, нашата цел е да Ви предоставим качествено обслужване, на което ние бихме се радвали, ако сме Ваши клиенти!
Виж всички обяви в samhome.bazar.bg или тук
        
       
         
         
             
            






