ПЛ Груп предлага голям тристаен апартамент в нова сграда в пресечка на ул. Г.С.Раковски.
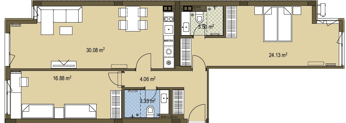
Апартаментът се намира на втори етаж над партер в сградата с обща площ от 127.47 м2. Имотът се предлага завършен по БДС с възможност за довършване до ключ на преференциални цени.
Състои се от входно антре,две бани с тоалетни, дневна (30м2), две спални (17 м2 и 24 м2).
Сградата се състои от общо 18 апартамента на 7 етажа. Всички апартаменти са проектирани с идеята за максимален комфорт на обитателите си. Част от акцентите са: правилни форми на стаите, голяма използваема площ, малко общи части, луксозна фасада и довършителни работи, френски прозорци, отопление на ТЕЦ и други.
За повече информация и огледи не се колебайте да ни потърсите!







