Оферта 64262: Кондор имоти представя най-новият лимитиран бутиков комплекс в парк Отдих и култура ! Близостта му до Гребен канал Пловдив, големи пътни артерии и ниското застрояване в района го прави предпочитана локация за живеене.
Комплексът е от затворен тип с контролиран достъп 24/7 и видеонаблюдение, с минимални такси поддръжка, включващ три сгради с по 7 апартамента и осигурено над 100 % паркиране.
Модерният и отличаващ се дизайн, повлиян от бързо развиващият се New York, включва така типичният Rooftop за всеки апартамент около 25 кв. м. напълно безплатно. Покривните тераси са обособени с вечно зелена растителност и изградени слънцезащитни съоръжения. Сградите са проектирани по всички световни стандарти, включващи енергийно ефективни характеристики с висока земетръсна устойчивост.
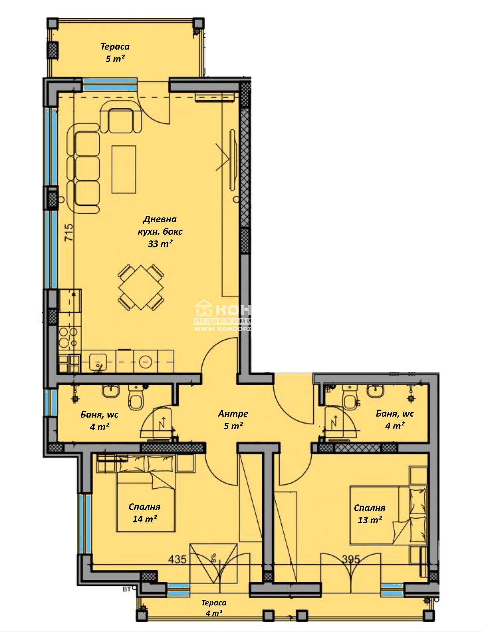
Разпределение: Апартаментът се състои от просторна ъглова дневна 33кв.м. с кухненски бокс и трапезария, две самостоятелни спални с излаз на обща тераса: родителска 14кв.м. и детска 13кв.м.,две бани с тоалетна, входно антре и още една тераса.
Предимства :
* Фасада - Клинкер тухли от най-висок клас, осигуряващи висока енергоефективност, шумо и влаго изолация, устойчивост на атмосферни влияния и дълготрайност.
* Топлоизолация - Цялостна каменна изолация 12 см.
* Стени - Външни и вътрешни стени по системата на Wienerberger Porotherm с двоен зид и шумоизолация между апартаментите !
* Дограма - 5 камерна KÖMMERLING, с подсилен шумоизолационен стъклопакет. Слънцезащитно покритие - 4 сезона, ниско емисионно КА стъкло, топъл дистанционер и заключващи механизми и обков MACO.
* Шумоизолация - 12 см разположена на пода, тавана и стените и двоен зид . Канализация- изпълнена със специализирани, шумопоглъщащи PVC тръби, до точка
* Входни врати - блиндирани и пожароустойчиви с висок клас касова брава
* Балкони - първокачествен мразоустойчив гранитогрес, полиуретанова хидроизолация и мозаечна, силиконова мазилка от най-високо качество.
* Общи части - настилки гранит. Парапети - ковано желязо.
* Асансьори. - висок клас Schindler с осигурен достъп на хора с увреждания.
* Вертикална планировка - изградена, съгласно утвърденият проект. Предоставяме възможност за покупка на дом проектиран с мисъл за Вашият комфорт, стил и качество на живот.
* Приложена е снимка от друг обект на строителната компания
Гъвкави схеми на разсрочено плащане в рамките на строителството, както и съдействие за банково кредитиране с изключително изгодни условия за клиенти на агенция Кондор.
ВИЖТЕ ОЩЕ ИЗГОДНИ ОФЕРТИ НА https://www.kondorimoti.com/ С ЕЖЕДНЕВНА АКТУАЛИЗАЦИЯ!







