Оферта 64126: Представяме Ви нова малка, жилищна сграда с нисък % общи части, с общо 11 апартамента и осигурено паркиране на 100%.
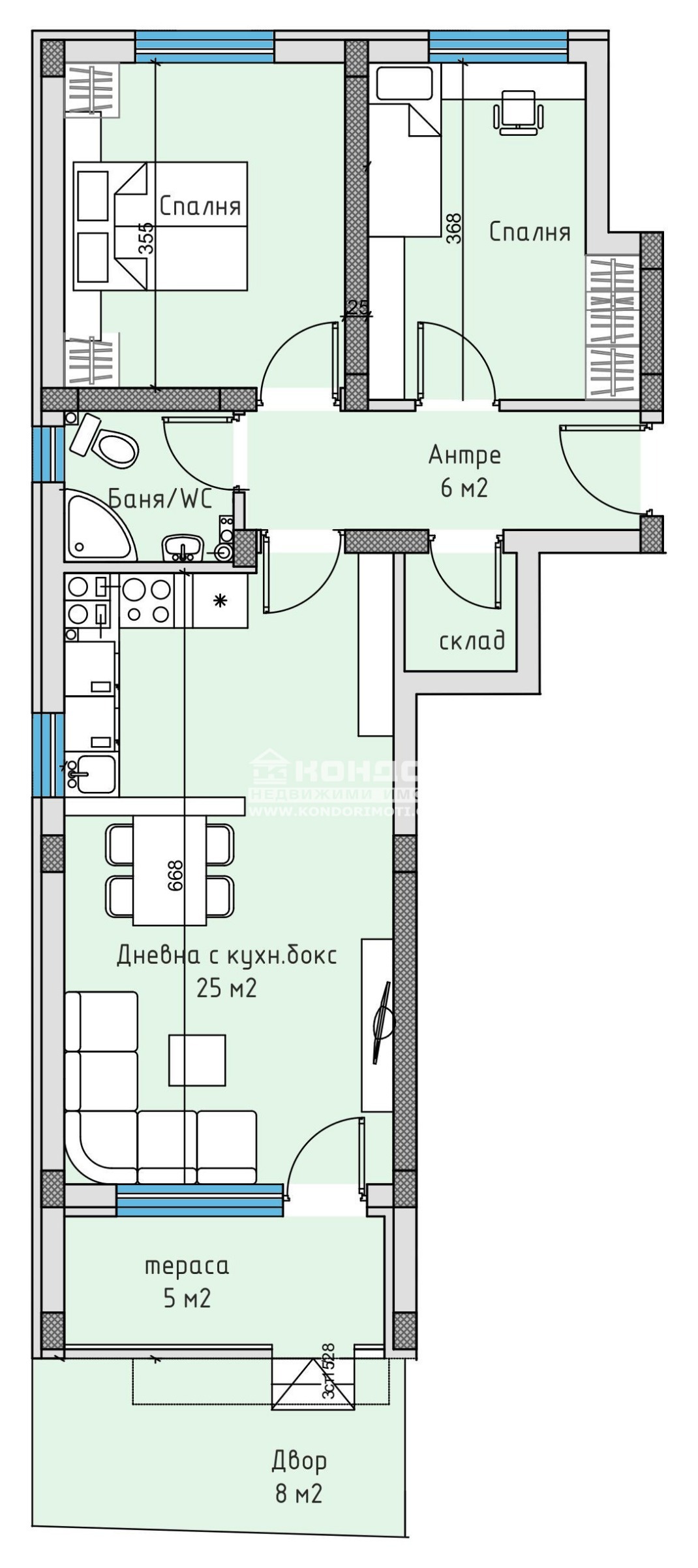
АПАРТАМЕНТ - Прекрасно тристайно жилище проектирано с големи, просторни стаи, състои се от просторна дневна 25кв.м. с трапезария и светъл кухненски бокс, две самостоятелни спални, баня с тоалетна, перално /килер/, входно антре, тераса и собствен двор.
ЛОКАЦИЯ - Разположена в предпочитан за живеене район, сградата е неповторимо съчетание от спокойна атмосфера, зелени площи, модерен лукс и отлична локация в непосредствена близост до всичко необходимо за едно комфортно ежедневие. В същото време изцяло обновената инфраструктура на района осигурява бърз достъп до центъра на града.
НАЧИН НА ЗАВЪРШВАНЕ - Луксозни общи части, стени декоративна мазилка, под гранит, осветление с фотоклетки, безшумен асансьор, хидро и топлоизолации, PVC дограма, нискоемисионно - всесезонно стъкло, блиндирани входни врати, луксозно завършване на стълбищната клетка!
ЕКСТРИ - Паркирането е осигурено чрез паркоместа в двора.
НАЧИН НА ПЛАЩАНЕ - Разсрочено плащане в процеса на строителство, както и възможност за договаряне на индивидуални схеми и възможност за банково финансиране!ВИЖТЕ ОЩЕ ИЗГОДНИ ОФЕРТИ НА https://www.kondorimoti.com/ С ЕЖЕДНЕВНА АКТУАЛИЗАЦИЯ!







