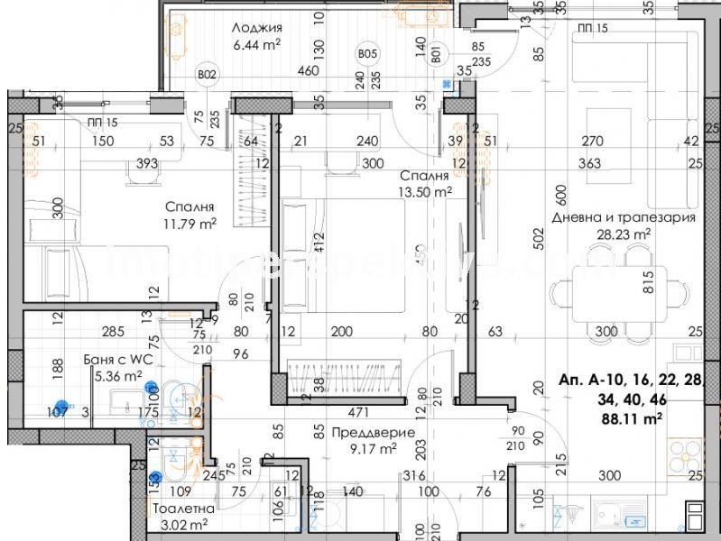
реф.13002 Идеален за инвестиция ! Предлагаме на вниманието ви страхотен апартамент в НОВОПОСТРОЕНА луксозна сграда пред АКТ 14, разположена на много спокойно и зелено място в един от най-привлекателните квартали на Пловдив ! Жилището се състои от просторна дневна с кухненски бокс, две спални, вх.антре , баня с тоалетна , още една тоалетн, тераса и изба Сградата се строи от утвърден строител с множество готови обекти , като ще бъде завършена съгласно всички европейски стандарти при технологията и качеството на строителство : стилна фасада, луксозни общи части , Постигнати високи нива на енергийна ефективност!
Сградата е с НИСЪК ПРОЦЕНТ ОБЩИ ЧАСТИ, хидро и топлоизолации, немска PVC дограма, блиндирани входни врати, иновативен електрически асансьор, луксозно завършване на общите части !
НА РАЗПОЛОЖЕНИЕ СЪМ ЗА ВСЯКАКВИ ВЪПРОСИ И КОНСУЛТАЦИИ, ЗА ЦЕЛТА СЕ СВЪРЖЕТЕ С МЕН НА ТЕЛЕФОН:
ГЕОРГИ ПРИСАДНИКОВ
0890522227







