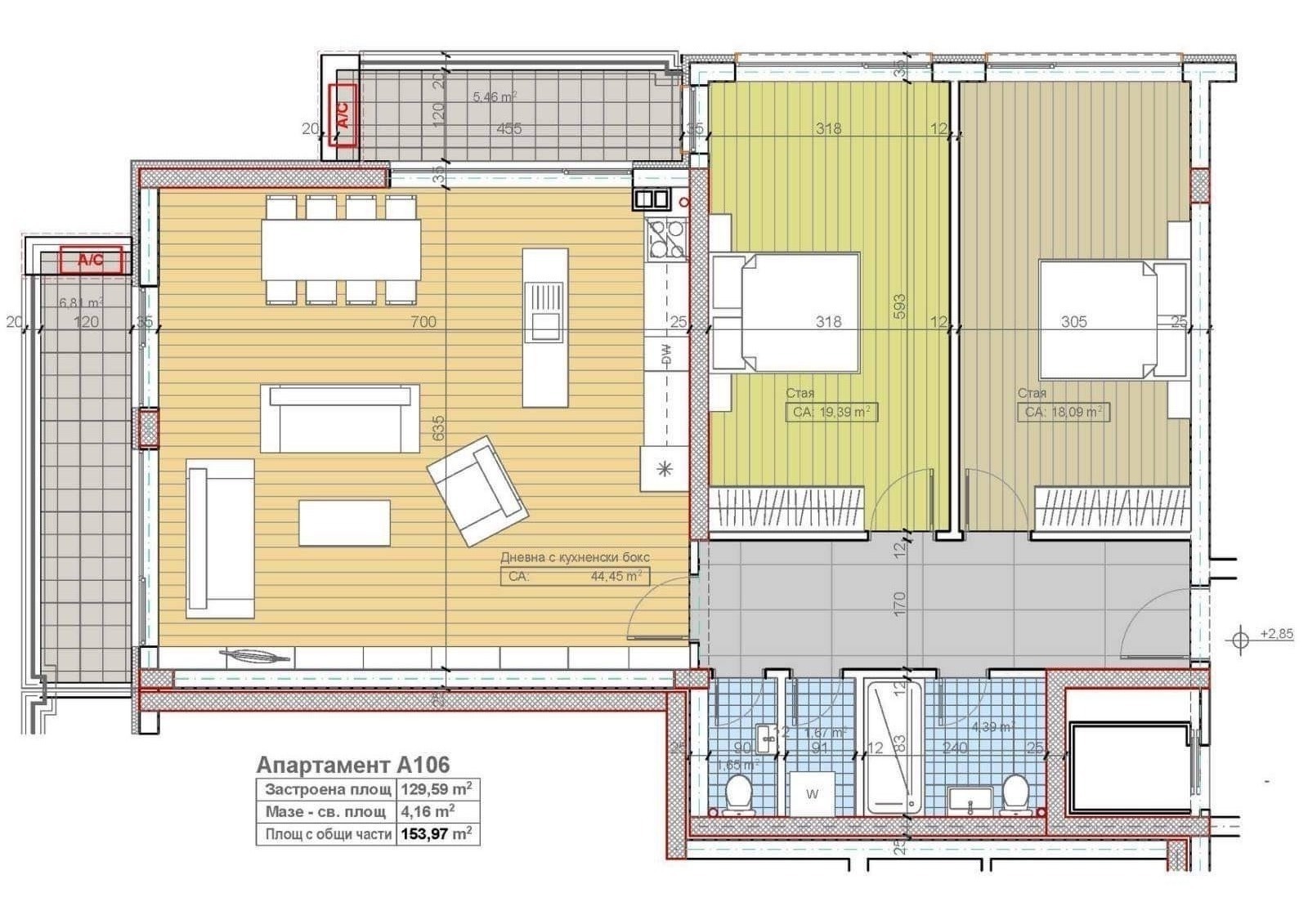
Голям Тристаен апартамент А106 изложение: дневна - 44 кв.м юг, две стаи - частично юг, основно запад 18 и 19,5 кв.м; на отлична локация в м.Гърдова глава (част от кв.Бояна) на ул.'Преки път' 84 в луксозна жилищна сграда с изцяло окачена вентилируема фасада и дограма от композитен материал GENEO на REHAU с троен стъклопакет, четворна хидроизолация на покрив и покривни тераси. Етап: довършителни работи ; Крайната цена е с включен ДДС.
Има възможност за покупка на гараж/паркомясто.
Виж всички обяви в msviat.bazar.bg или тук
        
       
         
         
         
         
         
         
         
         
         
         
         
         
         
         
             
             
             
             
             
             
             
             
             
             
             
             
             
            






