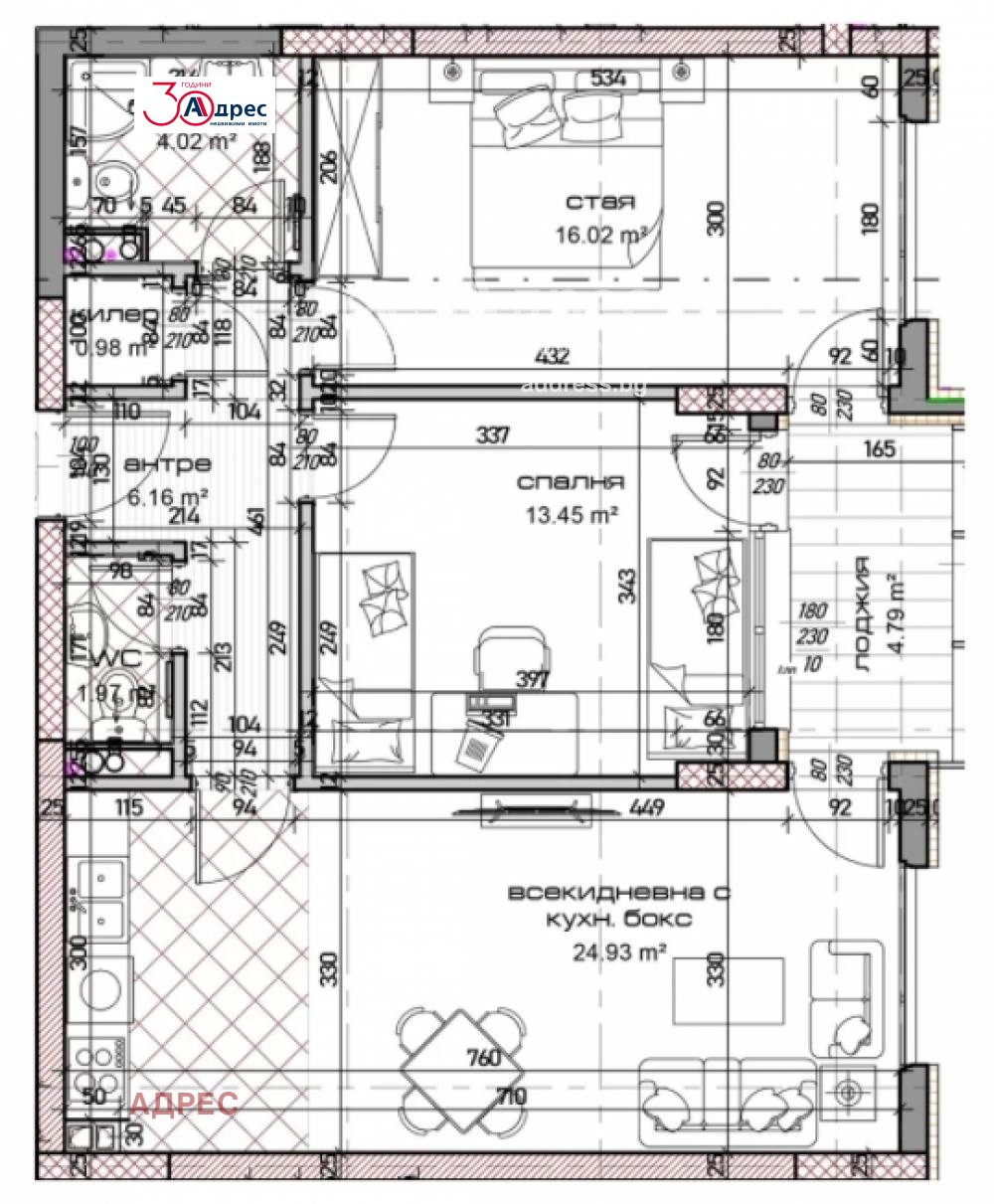
Сградата се намира в предпочитаният за живеене от много варненци квартал Младост. Района предлага множество удобства, като хипермаркет, търговски центрове, училища, детски градини, поликлиника и развита транспортна инфраструктура.
Сградата е с уникална архитектура за град Варна, а височина от над 61 метра я прави от най-високите жилищни сгради в града. За удобство на клиентите сградата ще разполага с 6 просторни асаньора. Висококачествените и енергоспестяващи материали, ще осигурят, както комфорта така и максимално намаляване на месечните разходи по сметки за ток и отопление.
Обади се сега и цитирай този код 543010
Виж всички обяви в adress.bazar.bg или тук







