ТРИСТАЕН АПАРТАМЕНТ! НОВА БУТИКОВА СГРАДА!
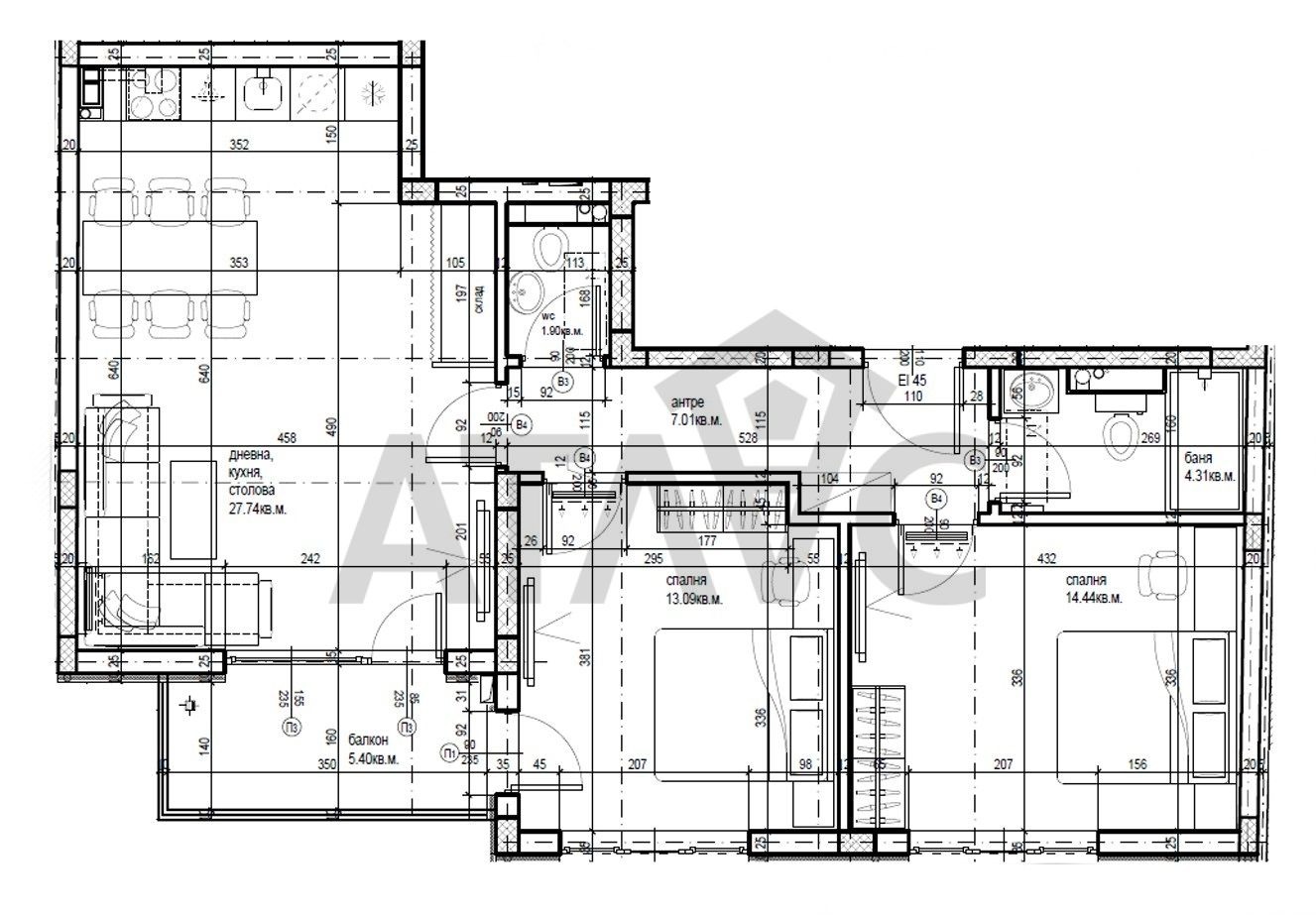
АТЛАС НЕДВИЖИМИ ИМОТИ Ви предлага тристаен апартамент в нова жилищна сграда с модерна архитектура и високо качество на изпълнение в района на Каменица 1. Жилището се състои от просторен хол с кухненски кът и трапезария с излаз към тераса, две спални помещения, входно антре с обособено складово помещение, баня с тоалетна и втора тоалетна.
Предлага се на шпакловка и замазка и позволява да бъде завършен съобразно личните предпочитания на бъдещите собственици.
В сградата има възможност за закупуване на паркоместа и гаражи! Оказваме пълно съдействие за банково финансиране от ВСИЧКИ ВОДЕЩИ БАНКИ в страната при най-добри условия и цялостна юридическа проверка на имотите, които предлагаме! БЪДЕТЕ ПРОФЕСИОНАЛИСТИ в избора на жилище с АТЛАС НЕДВИЖИМИ ИМОТИ !
Виж всички обяви в atlasimotibg.bazar.bg или тук







