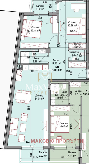
MaxView ви представя новострояща се жилищна сграда, която се намира на едно от най-комуникативните места в София. Централното, но същевременно тихо и спокойно местоположение на сградата е основен приоритет за бъдещите собственици. Намира се на пешеходно разстояние от метростанция Хаджи Димитър,училище и детски градини. Сградата предлага функционални двустайни,тристайни и просторни четиристайни апартаменти. Проекта се изпълнява по Европейски стандарти с най-висок клас материали: Отопление: изводи за климатици във всяка стая; радиатори ТЕЦ; подово отопление в баните. Изолация: Сградата е топлоизолирана с 10 см EPS изолация. Покривите са топлоизолирани с XPS изолация 10 см и двойно хидроизолирани. Всички тераси също са хидроизолирани. Стени: Oграждащите и преградните стени са тухлени, при спазване на БДС с гарантирано качество на материалите. Заложени са висококачествени тухли Wienerberger. Фасадните стени са комбинация от полимерна мазилка и естествен камък. Дограма: Дограмата е с трислоен стъклопакет с К стъкло профил. Най-качественото решение за вашия уют през различните сезони. Входните врати са блиндирани. Инсталации: Към всяко жилище са осигурени звънчева, телефонна и видеодомофонна инсталации, мрежа за включване на кабелна телевизия и интернет. Енергийна ефективност: Постигането на ниски енергийни разходи е приоритет в съвременните проекти. Максимална енергийна ефективност с качествена изолация, материали и детайли. Общите части на сградата ще бъдат луксозно изпълнени и оборудвани с гранит, дървена ламперия и луксозен хидравличен асансьор. Опция за покупка на паркомясто БЕЗ КОМИСИОННА ОТ КУПУВАЧА!!! За повече информация тел.0893 06 94 04 Марио Димитров
Виж всички обяви в maxview050221.bazar.bg или тук







