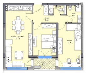
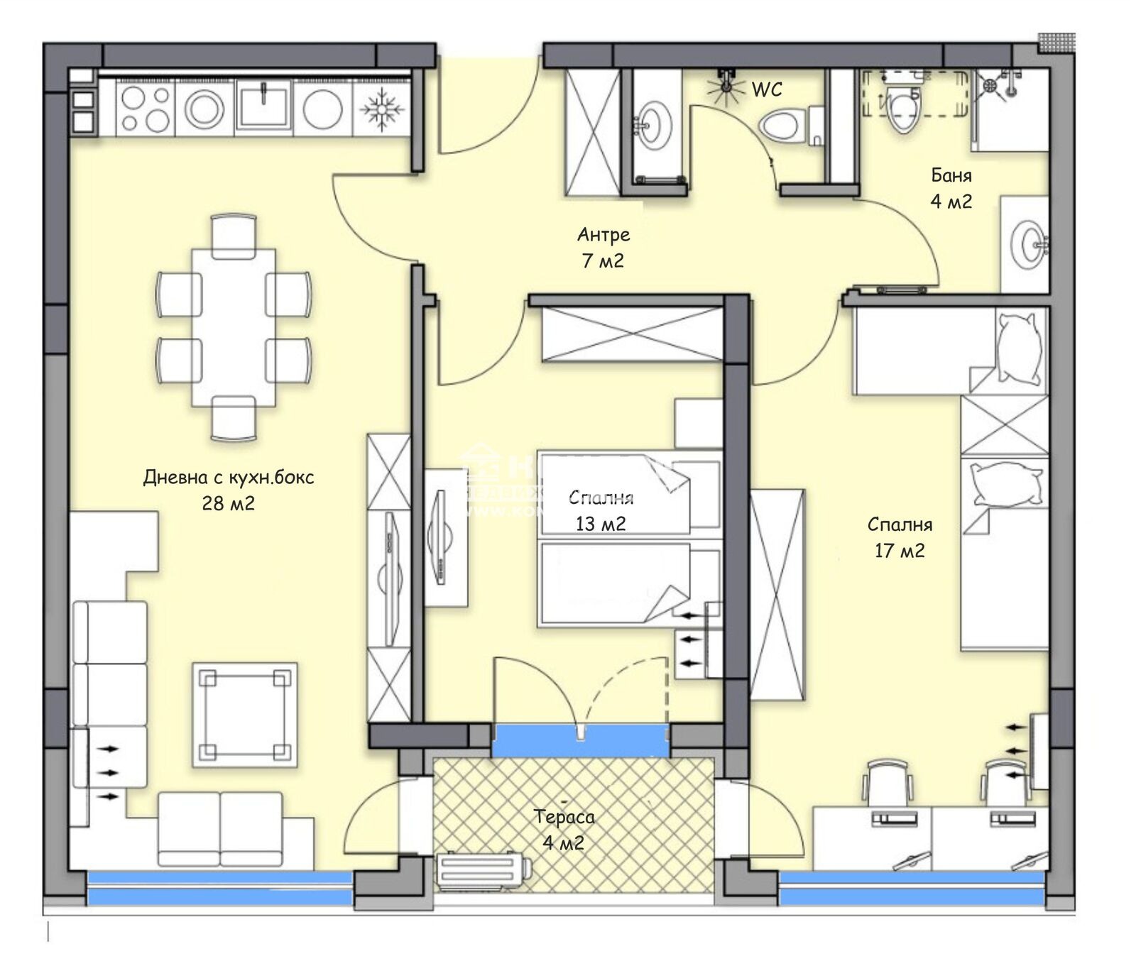
Оферта 63328: Новоизградена модерна сграда със стилен дизайн, която съчетава удобството на градската среда и спокойствието на тихата локация. В близост са големи хипермаркети, аптеки, детски градини и училища. Апартаментите са с изключително добро разпределение. Предлагаме ви тристаен апартамент, състои се от входно антре с място за гардероб, дневна 28кв.м. с кухненска част и трапезария, две самостоятелни спални: детска 13кв.м. и родителска 17кв.м., баня с тоалетна, втора тоалетна и една тераса, обща за трите стаи. За удобството на всеки живущ са осигурени достатъчен брой гаражи и паркоместа. Изпълнението на сградата е с висококачествени материали и съвременни технологии по европейски стандарт, петкамерна PVC дограма, блиндирани входни врати, електрическа асансьорна уредба, топло и хидро изолация - 10см. Луксозни общи части с гранитни плочи. Жилищата ще са завършени до степен шпакловка и замазка, монтирани ключове и контакти както и с положени настилки по терасите от гранитогрес. Разсрочено плащане в рамките на строителството и съдействие при банково кредитиране. Предлагат се индивидуални и гъвкави схеми на плащане. Проектът е изпълнен от реномиран строител.
ВИЖТЕ ОЩЕ ИЗГОДНИ ОФЕРТИ НА https://www.kondorimoti.com/ С ЕЖЕДНЕВНА АКТУАЛИЗАЦИЯ!







