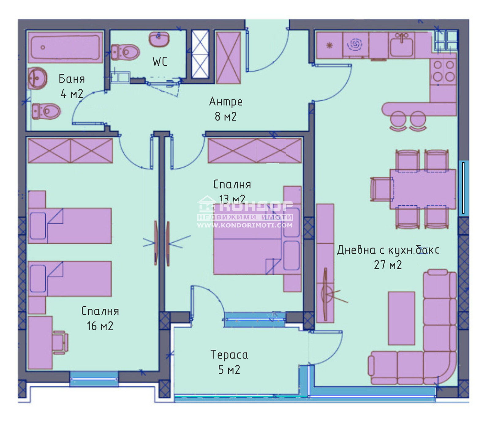
Оферта 63317: Прекрасни просторни жилища и за продажба в НОВА ГОТОВА СГРАДА в близост до търговски център, големи вериги магазини, и учебни заведения! Новият жилищен комплекс се отличава с простор и открити гледки, контролиран достъп на автомобили и луксозно завършени общи части. Апартаментът, който Ви предлагаме е тристаен с изложение ЮГ/ИЗТОК, състои се от входно антре с място за гардероб, слънчева ъглова дневна 27кв.м., две самостоятелни спални: родителска 13кв.м. и детска 16кв.м., баня с тоалетна, втора тоалетна и една тераса. Към апартамента има прилежащо избено помещение включено в цената. Степента на завършеност на апартаментите е съобразно всички съвременни изисквания с блиндирана входна врата, под - циментова мазилка, тавани и стени - гипсова мазилка, електрическа инсталация до ключ и контакт, многокамерна PVC дограма, напълно завършени тераси и просторна стълбищна клетка, безшумен хидравличен асансьор. Към всеки апартамент се закупува подземно или надземно паркомясто или гараж. Гъвкава схема на разсрочено плащане с отстъпки при по-висока първоначална вноска. Осигурено банково кредитиране на специални условия за нашите клиенти от водещи банки.
ВИЖТЕ ОЩЕ ИЗГОДНИ ОФЕРТИ НА https://www.kondorimoti.com/ С ЕЖЕДНЕВНА АКТУАЛИЗАЦИЯ!







