SoHome Residential Park гр. София е отличен два пъти с първа награда в националния конкурс Сграда на годината за 2022г и за 2024г.
Стартира строителството и на последната част от комплекса - Етап 3 на SoHome Residential Park гр. София.
Очаквания срок за завършване е до края на 2028г.
В момента може да се възползвате от нашата промоционална схема на плащане - само 20% при подписване на договор и 80% след Акт 16, когато прехвърляме собственост!
Последната част от комплекса е ситуирана на терен от близо 14 декара, като само 3.4 дка от тях са застроени и представляват 3 жилищни сгради.
Две от сградите са с 8+1 етажа, а третата е с 5+1 етажа.
Проектирани са:
194 броя апартамента с 1, 2 и 3 спални
407 броя изцяло подземни паркоместа и гаражи
Вътрешният двор на комплекса е над 30 декара, изцяло пешеходен, в който са разположени общо 9 детски площадки, за различни възрасти.
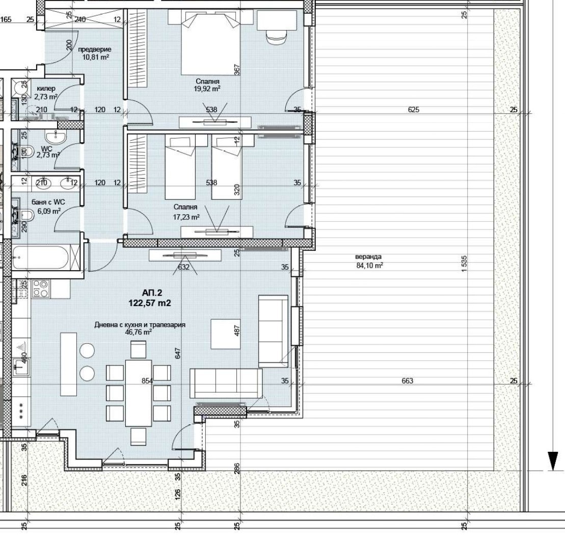
Представеният апартамент Б2 се намира на 1-ви партерен етаж в Сграда 12.
Апартамента е с обща застроена площ от 144,96кв.м. и има собствен двор с площ 125,40кв.м., който е бонус към апартамента. Изложение юг-изток, юг-запад, с гледка към вътрешния двор на комплекса и зоопарка.
Всички свободни апартаменти може да видите от тук:
https://sohome.bg/apartment/
SoHome Residential Park е комплекс от затворен тип със задължителна такса управление и поддръжка, която е 1.88лв. за кв.м. на месец.
Изцяло подземни паркоместа и гаражи на цени от 32 000 евро без ДДС.
SoHome Residential Park е жилищен комплекс разположен в една от най-съвременните зони на гр. София, район Лозенец. Комплексът граничи с Ловен парк, Зоологическа градина, река Драгалевска, улица Сребърна.
Фасадите са вентилируеми с каменно-минерална вата и клинкерни плочи. Висок клас алуминиева с прекъснат термомост с троен стъклопакет. Всеки апартамент е с монтирана индивидуална термопомпа, захранваща подово отопление (монтирано във всяка стая), охлаждане и бойлер.
Луксозни общи части!
За повече информация, моля свържете се с нас за да запазим дата и час за среща!
Офис продажби на територията на комплекса:
ул. 'Сребърна' 27В
0882 330022; 0889 600150
[email protected]
www.sohome.bg
Виж всички обяви в husestate.bazar.bg или тук
        
       
         
         
         
         
         
         
         
         
         
         
         
         
             
             
             
             
             
             
             
             
             
             
             
            


