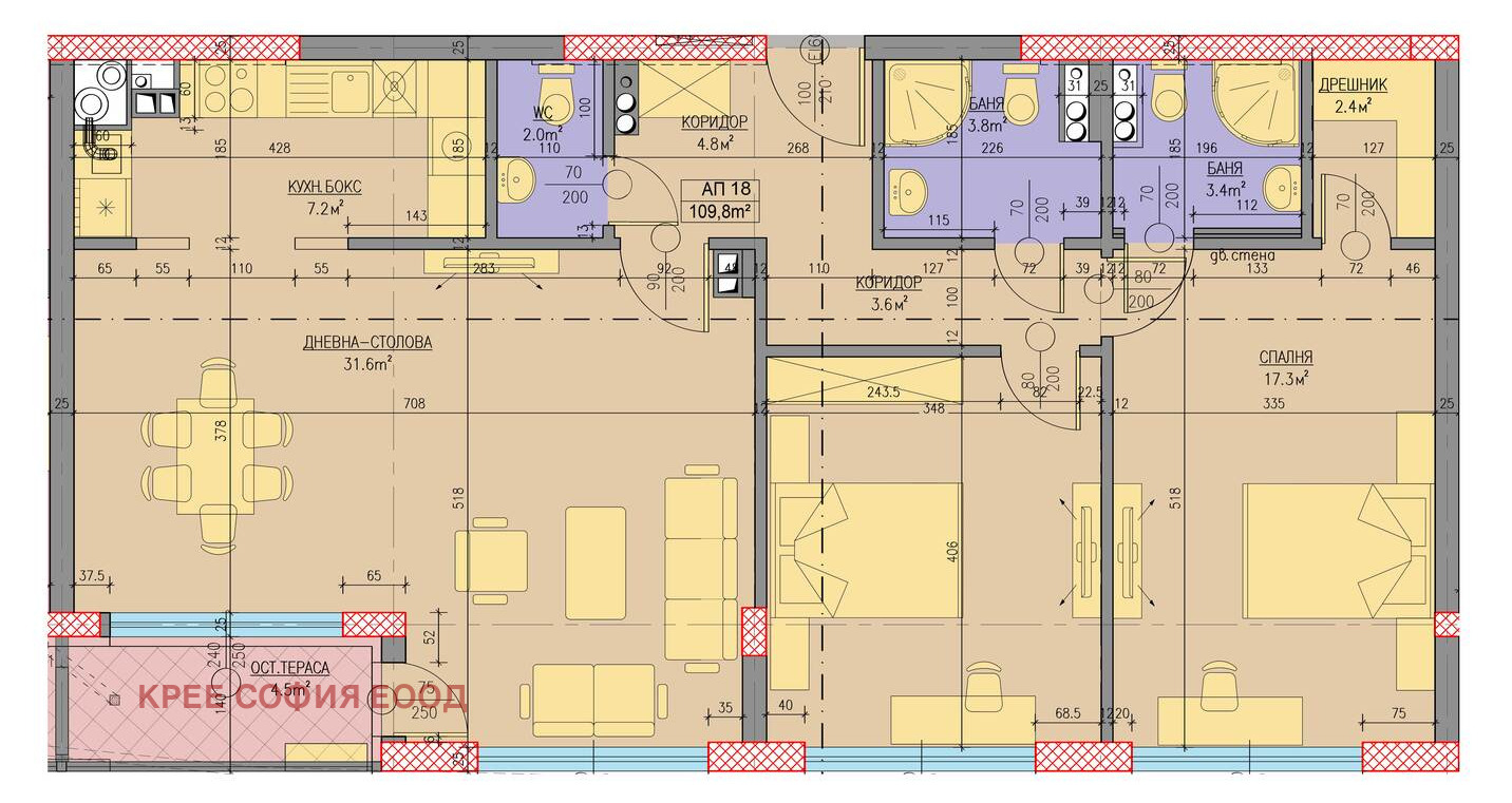
Крее София има удоволствието да Ви представи луксозен апартамент с функционално разпределение в Резиденция Stella. Изложение - юг-изток, кота +23,54, високи тавани, състои се от антре, 2 спални, просторен хол, трапезаря, кухня или или кухненски бокс, 2 бани с тоалетна, отделна тоалетна за гости, дрешнк, остъклена тераса, мазе. Предлага се на мазилка и замазка, с изградена газова инсталация с котлета и климатици. Сградата е ситуирана на веждата на София, на изключително достъпно и комуникативно място. Локацията едновременно Ви предоставя рядката възможност, както да се насладите на спокойствието и красотата на Витоша, така и да бъдете на пешеходно разстояние от Paradise mall и метростанция Витоша. Монолитната бетонна антиземетръсна конструкция и блиндираните пожароустойчиви врати с механично и електронно управление, са с най-висока степен на сигурност, а фасадата от чист Врачански варовик създава усещане за чистота и лукс, още преди да сте прекрачили прага на сградата. Дограмата от последно поколение Reynaers Masterline 8 Hi, допълнетелно се грижи за тишината и уюта във Вашия дом. Сградата разполага с подземни гаражи, видео наблюдение и жива охрана.
Акт 16 от 09.04.2025 г. Възможност за изпълнени довършителни работи и предаване до ключ. За повече информация и други предложения в Резиденция Stella: https://www.creerbulgaria.com/ тел.: 0888805755, 0887717179, http://: kreesofiaeood.imot.bg
18
Виж всички обяви в kreesofiaeood.bazar.bg или тук







